19.8万円
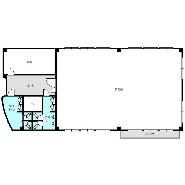
事務所
種別 事務所
専有面積 149.41㎡
おすすめ
ポイント
ワンフロア1テナント。
| 築年月 | 1989年5月 |
|---|---|
| 構造 | 重量鉄骨造 |
| 所在階 | 4階建ての2階 |
| 向き | - |
| バルコニー面積 | - |
| 駐車場 | 有り 月額5,500円 |
| 入居可能日 | 即可 |
| 賃貸借の種類 | 普通賃貸借 |
| 契約期間 | 2年 |
| 共益費・管理費 | - |
| 敷金 | 54万円 |
| 礼金 | - |
| 保証金 | - |
| 償却金 | - |
| 更新料 | - |
| 保証料等 | 要加入(2年) |
| 保証会社補足 | 管理会社指定の保証会社に加入して頂きます。 |
| 取引態様 | 媒介 |
| 情報更新日 | 2025年10月21日 |
| 次回更新予定日 | 2025年11月21日 |
設備・特記
《設備》トイレ(共同)/エレベータ/敷地内駐車場/プロパンガス/水道井戸
《その他一時金》-
《その他月額費用》-
備考
《その他》賃貸保証審査有 P有(空位置要確認) 賃料に共益費・警備料含む 共用部に男女別トイレ有 土日祝日利用可
※現状と異なる場合は、現状を優先させていただきます。取引態様の欄に「媒介」と表示された物件は「仲介物件」です。ご成約の際には仲介手数料を申し受けます。