8.4万円
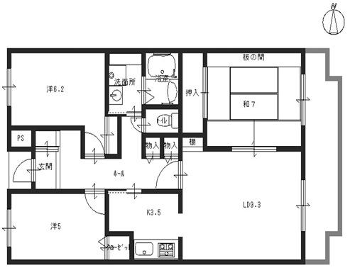
3LDK
種別 マンション
専有面積 71.91㎡
おすすめ
ポイント
東向きバルコニーで朝日が差し込みます☆
リビングエアコン付いてます☆
| 築年月 | 1996年9月 |
|---|---|
| 構造 | プレキャストコンクリート |
| 所在階 | 4階建ての1階 |
| 向き | 東 |
| バルコニー面積 | - |
| 駐車場 | 空きなし |
| 入居可能日 | 相談 |
| 賃貸借の種類 | 普通賃貸借 |
| 契約期間 | 2年 |
| 共益費・管理費 | 6,000円 |
| 敷金 | - |
| 礼金 | - |
| 保証金 | - |
| 償却金 | - |
| 更新料 | - |
| 保証料等 | 要加入(2年20000円) |
| 保証会社補足 | 初回50%1年更新1万円 |
| 取引態様 | 媒介 |
| 情報更新日 | 2026年3月19日 |
| 次回更新予定日 | 2026年3月26日 |
設備・特記
《設備》TVモニター付きインターホン/エアコン/バス・トイレ別/洗髪洗面化粧台/独立洗面台/温水洗浄便座/洗面化粧台/バルコニー/室内洗濯機置場/クローゼット/押入/ガスコンロ(2口)/敷地内駐車場
《その他一時金》半年ごとに自治会:1200円
《その他月額費用》-
備考
《駐輪場》有り(無料)
《その他》各居室に収納あります☆☆
※現状と異なる場合は、現状を優先させていただきます。取引態様の欄に「媒介」と表示された物件は「仲介物件」です。ご成約の際には仲介手数料を申し受けます。