31.4万円
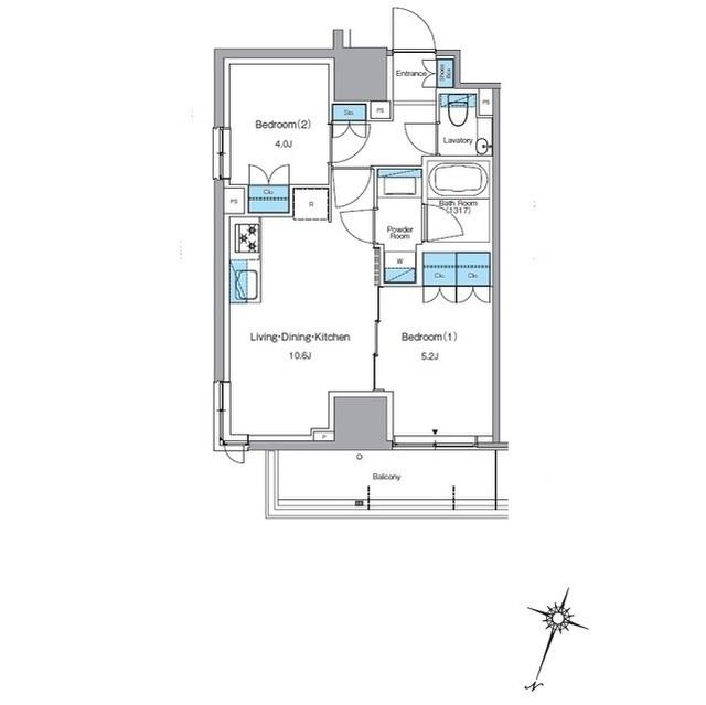
2LDK
種別 マンション
専有面積 47.06㎡
おすすめ
ポイント
礼金ゼロ!ペットと暮らせる築浅の高級マンション
この浮いたお金でうまくやりくりを!礼金0円。お探しの方には嬉しいペット相談可。
| 築年月 | 2022年10月 |
|---|---|
| 構造 | 鉄筋コンクリート造 |
| 所在階 | 地下1階・地上18階建ての6階 |
| 向き | 北 |
| バルコニー面積 | - |
| 駐車場 | なし |
| 入居可能日 | 2026年1月20日予定 |
| 賃貸借の種類 | 普通賃貸借 |
| 契約期間 | 2年 |
| 共益費・管理費 | 30,000円 |
| 敷金 | 31.4万円 |
| 礼金 | 314,000円 |
| 保証金 | - |
| 償却金 | - |
| 更新料 | 更新後賃料:1ヶ月 |
| 保証料等 | 要加入(2年16550円) |
| 保証会社補足 | レジデンシャルパートナーズ 保証料:賃料等の50%(最低2万)、月額保証・事務手数料:賃料等の1%(更新料無) |
| 取引態様 | 媒介 |
| 情報更新日 | 2025年11月26日 |
| 次回更新予定日 | 2025年12月2日 |
設備・特記
《設備》エアコン/オートロック/TVモニター付きインターホン/防犯カメラ/インターネット無料/CATV/エレベータ/宅配ボックス/駐輪場/バイク置場/システムキッチン/室内洗濯機置場/バス・トイレ別/追い焚き風呂/独立洗面台/温水洗浄便座
《物件の特徴》ペット相談可
《その他一時金》清掃費:50930円 / エアコン清掃費:33000円
《その他月額費用》-
備考
《その他》この浮いたお金でうまくやりくりを!礼金0円。お探しの方には嬉しいペット相談可。移動がスムーズにできて作業がしやすいシステムキッチン仕様、更に同居人の入浴時間を待たずとも顔が洗える洗面所独立の住居なので、念入りなお出かけ準備に集中できます。また初々しさが残る築2年以内の建物で、その上留守番いらずの宅配BOX付なので、ネット通販大好き派にはお勧めです。
※現状と異なる場合は、現状を優先させていただきます。取引態様の欄に「媒介」と表示された物件は「仲介物件」です。ご成約の際には仲介手数料を申し受けます。