7.5万円
1K
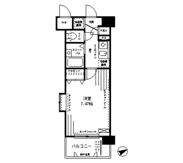
種別 マンション
専有面積 23.20㎡
おすすめ
ポイント
設備充実のマンション!オートロック、便利な宅配ボックス付き!
追い炊き機能付きの浴室でいつでもホカホカのバスタイム!南東向きの為陽当たり良好です!
築年月 | 2002年9月 |
---|---|
構造 | 鉄筋コンクリート造 |
所在階 | 5階建ての1階 |
向き | 南東 |
バルコニー面積 | - |
駐車場 | なし |
入居可能日 | 相談 |
賃貸借の種類 | 普通賃貸借 |
契約期間 | 2年 |
共益費・管理費 | 4,000円 |
敷金 | 7.5万円 |
礼金 | 75,000円 |
保証金 | - |
償却金 | - |
更新料 | 更新後賃料:1ヶ月 |
保証料等 | 要加入 |
保証会社補足 | 加入要 初回保証委託料(最低20,000円):月額賃料等の50%、 2年目以降:9,600円/年 |
取引態様 | 媒介 |
情報更新日 | 2025年10月16日 |
次回更新予定日 | 2025年10月23日 |
設備・特記
《設備》エレベータ/宅配ボックス/インターネット対応/CATV/BSアンテナ/オートロック/オートロック置き配対応/エアコン/バス・トイレ別/浴室乾燥機/追い焚き風呂/シャワー/洗面台/フローリング/バルコニー/室内洗濯機置場/下駄箱/クローゼット/収納スペース/システムキッチン/ガスコンロ
《その他一時金》室内清掃費用:55000円 / 鍵交換費:27500円
《その他月額費用》口座振替事務手数料:110円/月
備考
※現状と異なる場合は、現状を優先させていただきます。取引態様の欄に「媒介」と表示された物件は「仲介物件」です。ご成約の際には仲介手数料を申し受けます。