26.8万円
1LDK
種別 マンション
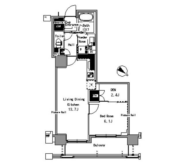
専有面積 50.07㎡
おすすめ
ポイント
| 築年月 | 2006年7月 |
|---|---|
| 構造 | 鉄筋コンクリート造 |
| 所在階 | 12階建ての12階 |
| 向き | 東 |
| バルコニー面積 | 8.00㎡ |
| 駐車場 | 有り 月額38,500円 |
| 入居可能日 | 2026年6月16日予定 |
| 賃貸借の種類 | 普通賃貸借 |
| 契約期間 | 2年 |
| 共益費・管理費 | 10,000円 |
| 敷金 | 26.8万円 |
| 礼金 | 268,000円 |
| 保証金 | - |
| 償却金 | - |
| 更新料 | 更新後賃料:1ヶ月 |
| 保証料等 | 要加入 |
| 保証会社補足 | 初回保証委託料(最低20,000円):月額賃料等の50%、 2年目以降:9,600円/年 |
| 取引態様 | 媒介 |
| 情報更新日 | 2026年4月18日 |
| 次回更新予定日 | 2026年4月25日 |
設備・特記
《設備》インターネット対応/CATV/BSアンテナ/CSアンテナ/オートロック/モニタ付オートロック/エアコン/バス・トイレ別/浴室乾燥機/追い焚き風呂/独立洗面台/フローリング/バルコニー/室内洗濯機置場/システムキッチン/グリル/エレベータ/宅配ボックス/敷地内駐車場/耐震構造/敷地内ごみ置き場/常時ゴミ出し可能/バイク置場
《物件の特徴》ペット相談可/ピアノ相談可/事務所利用不可
《その他一時金》室内清掃費:93630円 / 鍵交換費:16500円
《その他月額費用》口座振替事務手数料:220円/月
備考
※現状と異なる場合は、現状を優先させていただきます。取引態様の欄に「媒介」と表示された物件は「仲介物件」です。ご成約の際には仲介手数料を申し受けます。