36.1万円
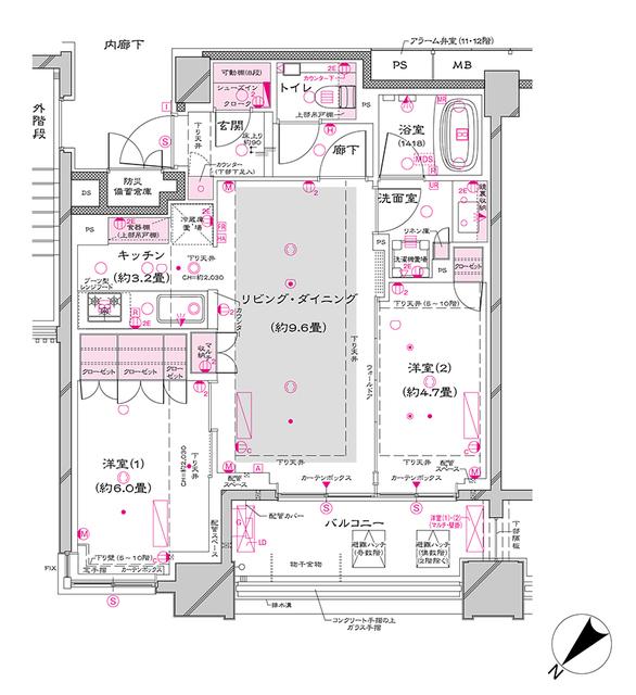
2LDK
種別 マンション
専有面積 55.38㎡
おすすめ
ポイント
 
            
         
                
             
                
             
                
            | 築年月 | 2021年1月 | 
|---|---|
| 構造 | 鉄筋コンクリート造 | 
| 所在階 | 12階建ての11階 | 
| 向き | 北西 | 
| バルコニー面積 | 7.00㎡ | 
| 駐車場 | なし | 
| 入居可能日 | 2025年12月16日予定 | 
| 賃貸借の種類 | 定期賃貸借 | 
| 契約期間 | 2年 | 
| 共益費・管理費 | 15,000円 | 
| 敷金 | 36.1万円 | 
| 礼金 | - | 
| 保証金 | - | 
| 償却金 | - | 
| 更新料 | - | 
| 保証料等 | 要加入 | 
| 保証会社補足 | 初回保証委託料(最低15,000円):月額賃料等の50%、 2年目以降:10,000円/年 | 
| 取引態様 | 媒介 | 
| 情報更新日 | 2025年10月23日 | 
| 次回更新予定日 | 2025年11月2日 | 
設備・特記
                    
                        
                            
                                《設備》フローリング/バルコニー/室内洗濯機置場/システムキッチン/食器乾燥機/食器洗浄乾燥機/グリル/エレベータ/宅配ボックス/敷地内ごみ置き場/常時ゴミ出し可能/CATV/BSアンテナ/CSアンテナ/オートロック/モニタ付オートロック/エアコン/床暖房/バス・トイレ別/浴室乾燥機/追い焚き風呂/独立洗面台 
                            
                        
                        
                            
                                《物件の特徴》ペット相談可/事務所利用不可 
                            
                        
                    
                    《その他一時金》室内清掃費:85285円 / 鍵交換費:22000円 
                    《その他月額費用》口座振替事務手数料:110円/月 
                    
                
備考
※現状と異なる場合は、現状を優先させていただきます。取引態様の欄に「媒介」と表示された物件は「仲介物件」です。ご成約の際には仲介手数料を申し受けます。