4.5万円
1K
種別 アパート
専有面積 34.80㎡
おすすめ
ポイント
システムキッチン付きで、お料理と後片付けが手早くできます。室内設備は浴室乾燥機・洗面所独立などが揃っ
| 築年月 | 2005年3月 |
|---|---|
| 構造 | 木造 |
| 所在階 | 2階建ての1階 |
| 向き | 南東 |
| バルコニー面積 | - |
| 駐車場 | 有り 月額4,400円 |
| 入居可能日 | 相談 |
| 賃貸借の種類 | 普通賃貸借 |
| 契約期間 | 2年 |
| 共益費・管理費 | 3,500円 |
| 敷金 | - |
| 礼金 | - |
| 保証金 | - |
| 償却金 | - |
| 更新料 | - |
| 保証料等 | 要加入 |
| 保証会社補足 | 初回50%、月額2090円(継続保証料+保険料) |
| 取引態様 | 媒介 |
| 情報更新日 | 2026年3月16日 |
| 次回更新予定日 | 2026年3月20日 |
設備・特記
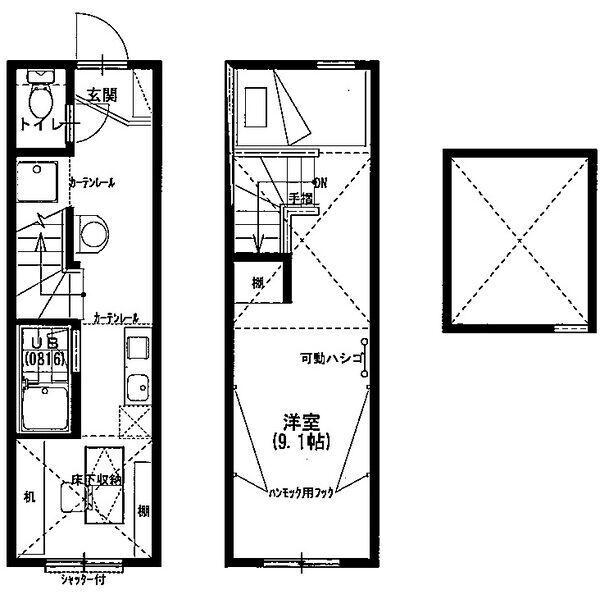
《設備》フローリング/バルコニー/ロフト/室内洗濯機置場/下駄箱/メゾネット/床下収納/システムキッチン/ガスコンロ/敷地内駐車場/駐輪場/プロパンガス/公営水道/下水/BSアンテナ/光回線/エアコン/バス・トイレ別/浴室乾燥機/独立洗面台/トイレ
《物件の特徴》ペット不可/保証人不要/初期費用カード決済可
《その他一時金》修繕分担金:70000円 / 火災保険:10000円
《その他月額費用》-
備考
《その他》室内設備はエアコン・システムキッチン・BSなどが揃っており、とても充実しています。敷地内に駐車場の空きがあるため、車を所有している方はご検討ください。今引っ越しをお考えの方におすすめなのが、こちらのアパートです。南西側が道路に面したアパートです。お部屋探しも楽しくワクワクしながら選びましょう。岡崎市エリアの名鉄名古屋本線美合近くの情報が満載です。是非、お問い合せ下さい。
※現状と異なる場合は、現状を優先させていただきます。取引態様の欄に「媒介」と表示された物件は「仲介物件」です。ご成約の際には仲介手数料を申し受けます。