10.7万円
1SLDK
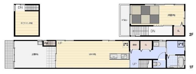
種別 テラスハウス
専有面積 65.00㎡
おすすめ
ポイント
尼崎市西難波、1SLDK、テラスハウス、ペット飼育可
システムキッチンなので、調理するにも機能的です。またゆったりめの延床面積65.0㎡の居室空間で、その上落ち着いた暮らしが始められる閑静な住宅街の物件なので、穏やかに暮らされたい方にはお勧めです。
| 築年月 | 1965年3月 |
|---|---|
| 構造 | 木造 |
| 所在階 | 2階建ての1階~2階 |
| 向き | - |
| バルコニー面積 | - |
| 駐車場 | なし |
| 入居可能日 | 即可 |
| 賃貸借の種類 | 普通賃貸借 |
| 契約期間 | 2年 |
| 共益費・管理費 | 3,000円 |
| 敷金 | - |
| 礼金 | 107,000円 |
| 保証金 | - |
| 償却金 | - |
| 更新料 | - |
| 保証料等 | 要加入(2年20000円) |
| 保証会社補足 | 初回:総賃料の50% 月額:1,990円(火災保険料・更新料・口座振替手数料込) |
| 取引態様 | 媒介 |
| 情報更新日 | 2026年4月13日 |
| 次回更新予定日 | 2026年4月20日 |
設備・特記
《設備》バルコニー/室内洗濯機置場/下駄箱/クローゼット/システムキッチン/ガスコンロ(2口)/最上階/角部屋/駐輪場/閑静な住宅街/都市ガス/敷地内ごみ置き場/バイク置場/TVモニター付きインターホン/バス・トイレ別/浴室乾燥機/追い焚き風呂/独立洗面台/温水洗浄便座/浴室暖房
《物件の特徴》ペット相談可/二人入居可/二人入居相談
《その他一時金》鍵交換代:38500円
《その他月額費用》-
備考
《駐輪場》有り(無料)
《その他》短期解約違約金(1年未満の場合、賃料総額の2ヶ月分・2年未満の場合、賃料総額の1ヶ月分)。 ペット飼育可(小型犬・猫)。
※現状と異なる場合は、現状を優先させていただきます。取引態様の欄に「媒介」と表示された物件は「仲介物件」です。ご成約の際には仲介手数料を申し受けます。