10.9万円
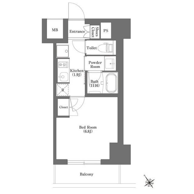
1K
種別 マンション
専有面積 25.03㎡
おすすめ
ポイント
◆インターネット無料 ファイバーゲートに限る
| 築年月 | 2019年2月 |
|---|---|
| 構造 | 鉄筋コンクリート造 |
| 所在階 | 11階建ての8階 |
| 向き | 南西 |
| バルコニー面積 | - |
| 駐車場 | なし |
| 入居可能日 | 2026年1月31日予定 |
| 賃貸借の種類 | 普通賃貸借 |
| 契約期間 | 2年 |
| 共益費・管理費 | 6,000円 |
| 敷金 | 10.9万円 |
| 礼金 | 109,000円 |
| 保証金 | - |
| 償却金 | - |
| 更新料 | 更新後賃料:1ヶ月 |
| 保証料等 | 要加入(2年16550円) |
| 保証会社補足 | クレディセゾン 保証料:賃料等50%(最低1.5万)、月次:賃料等1%(更新料無)、口座振替手数料借主負担 |
| 取引態様 | 媒介 |
| 情報更新日 | 2025年10月27日 |
| 次回更新予定日 | 2025年11月2日 |
設備・特記
《設備》フローリング/室内洗濯機置場/バス・トイレ別/浴室乾燥機/独立洗面台/温水洗浄便座/エアコン/オートロック/TVモニター付きインターホン/防犯カメラ/インターネット無料/CATV/エレベータ/宅配ボックス/駐輪場/常時ゴミ出し可能/システムキッチン
《その他一時金》鍵交換代:22000円 / 清掃費:38500円 / エアコン清掃費:11000円
《その他月額費用》-
備考
《その他》◆インターネット無料 (ファイバーゲート0120-988-660) ◆外国籍 社会人のかたご相談可能 ◆指定保証会社利用必須※一部法人契約除・敷金積増 ◆近隣建築計画あり(2025年5月8日〜2028年3月31日(予定)本物件の南東側の建物において解体工事が計画されており、振動・騒音・粉塵等が発生する可能性がある
※現状と異なる場合は、現状を優先させていただきます。取引態様の欄に「媒介」と表示された物件は「仲介物件」です。ご成約の際には仲介手数料を申し受けます。