11.3万円
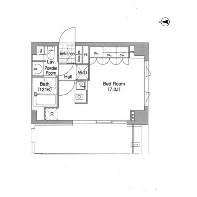
1R
種別 マンション
専有面積 27.40㎡
おすすめ
ポイント
■礼0ヶ月■1年以内解約時賃料1か月分違約金有
| 築年月 | 2000年10月 |
|---|---|
| 構造 | 鉄骨鉄筋コンクリート造 |
| 所在階 | 地下1階・地上14階建ての9階 |
| 向き | 西 |
| バルコニー面積 | - |
| 駐車場 | なし |
| 入居可能日 | 2025年12月20日予定 |
| 賃貸借の種類 | 普通賃貸借 |
| 契約期間 | 2年 |
| 共益費・管理費 | 10,000円 |
| 敷金 | 11.3万円 |
| 礼金 | - |
| 保証金 | - |
| 償却金 | - |
| 更新料 | 更新後賃料:1ヶ月 |
| 保証料等 | 要加入(2年16550円) |
| 保証会社補足 | エポスカード(RP) 保証料:賃料等の50%(最低2万)、月額保証料:賃料等の1%(更新料無) |
| 取引態様 | 媒介 |
| 情報更新日 | 2025年11月24日 |
| 次回更新予定日 | 2025年11月30日 |
設備・特記
《設備》フローリング/バス・トイレ別/独立洗面台/エアコン/オートロック/防犯カメラ/CATV/その他インターネット/エレベータ/宅配ボックス/駐輪場/常時ゴミ出し可能/システムキッチン
《その他一時金》鍵交換代:33000円 / 清掃費:33000円 / エアコン清掃費:11000円
《その他月額費用》-
備考
《その他》・本物件の北側に東武東上線の線路を高架化。伴う工事により、振動・騒音・粉塵等が発生する可能性および、線路の高架化による景観、日照、電波、周辺騒音に影響が発生する可能性があることを乙は確認し、あらかじめ了承するものとする。 予定工期:2025年4月〜2031年3月末(予定) ■礼金0■1年以内解約時賃料1か月分違約金有■指定保証会社利用必須※一部法人契約除(敷金1ヶ月積増)
※現状と異なる場合は、現状を優先させていただきます。取引態様の欄に「媒介」と表示された物件は「仲介物件」です。ご成約の際には仲介手数料を申し受けます。