37.4万円
2LDK
種別 マンション
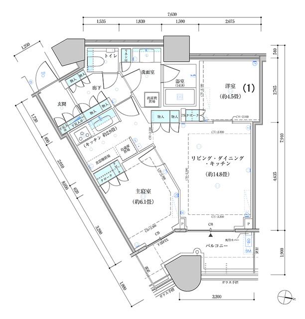
専有面積 60.25㎡
おすすめ
ポイント
| 築年月 | 2023年8月 |
|---|---|
| 構造 | 鉄筋コンクリート造 |
| 所在階 | 58階建ての13階 |
| 向き | 東 |
| バルコニー面積 | - |
| 駐車場 | なし |
| 入居可能日 | 2026年6月27日予定 |
| 賃貸借の種類 | 定期賃貸借 |
| 契約期間 | 2年 |
| 共益費・管理費 | - |
| 敷金 | 37.4万円 |
| 礼金 | 748,000円 |
| 保証金 | - |
| 償却金 | - |
| 更新料 | - |
| 保証料等 | 要加入 |
| 保証会社補足 | 初回保証委託料(最低20,000円):月額賃料等の50%、 2年目以降:9,600円/年 |
| 取引態様 | 媒介 |
| 情報更新日 | 2026年4月29日 |
| 次回更新予定日 | 2026年5月6日 |
設備・特記
《設備》分譲マンションタイプ/エレベータ/宅配ボックス/フロントサービス/敷地内ごみ置き場/タワー型マンション/バイク置場/システムキッチン/グリル/フローリング/バルコニー/室内洗濯機置場/バス・トイレ別/浴室乾燥機/追い焚き風呂/独立洗面台/エアコン/オートロック
《物件の特徴》ペット相談可/ピアノ相談可/事務所利用不可
《その他一時金》室内清掃費:112667円 / 鍵交換費:33000円
《その他月額費用》口座振替事務手数料:220円/月
備考
※現状と異なる場合は、現状を優先させていただきます。取引態様の欄に「媒介」と表示された物件は「仲介物件」です。ご成約の際には仲介手数料を申し受けます。