18.1万円
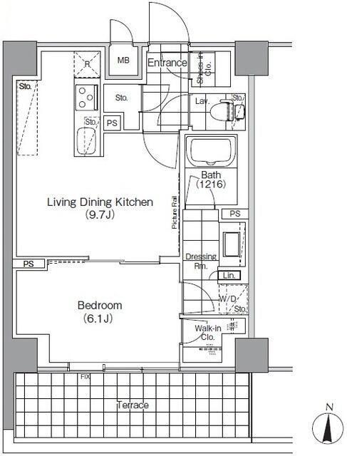
1LDK
種別 マンション
専有面積 40.50㎡
おすすめ
ポイント
他社掲載物件も一括手配!即日対応のLINEでご連絡下さい!
<<LINEID:@050wbngh>>
| 築年月 | 2015年8月 |
|---|---|
| 構造 | 鉄筋コンクリート造 |
| 所在階 | 5階建ての1階 |
| 向き | 南 |
| バルコニー面積 | 5.00㎡ |
| 駐車場 | なし |
| 入居可能日 | 2026年7月20日予定 |
| 賃貸借の種類 | 普通賃貸借 |
| 契約期間 | 2年 |
| 共益費・管理費 | 15,000円 |
| 敷金 | 18.1万円 |
| 礼金 | 181,000円 |
| 保証金 | - |
| 償却金 | - |
| 更新料 | 更新後賃料:1ヶ月 |
| 保証料等 | 要加入(2年32000円) |
| 保証会社補足 | 加入要 当社指定:初期費用は賃料等の50%、月次保証料は賃料等の1%。その他保証会社条件有 |
| 取引態様 | 媒介 |
| 情報更新日 | 2026年4月10日 |
| 次回更新予定日 | 2026年4月17日 |
設備・特記
《設備》オートロック/TVモニター付きインターホン/モニタ付オートロック/防犯カメラ/オートロック置き配対応/インターネット対応/インターネット無料/BSアンテナ/光回線/角部屋/エレベータ/宅配ボックス/専用庭/都市ガス/システムキッチン/グリル/フローリング/室内洗濯機置場/ウォークインクローゼット/バス・トイレ別/浴室乾燥機/追い焚き風呂/独立洗面台/温水洗浄便座/トイレ/エアコン/全居室エアコン
《物件の特徴》ペット相談可/ピアノ相談可/保証人不要
《その他一時金》入居時鍵交換費用:33000円 / M-REALプレミアム会費2年:19800円
《その他月額費用》-
備考
※現状と異なる場合は、現状を優先させていただきます。取引態様の欄に「媒介」と表示された物件は「仲介物件」です。ご成約の際には仲介手数料を申し受けます。