12万円
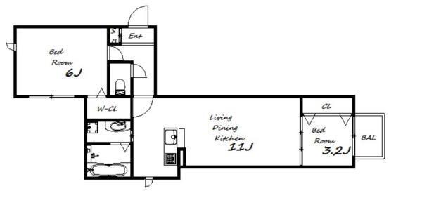
2LDK
種別 アパート
専有面積 50.50㎡
おすすめ
ポイント
女性スタッフ電話対応♪電話予約&成約でQUOカード500円☆ ピタットハウス兵庫店ではネット掲載物件は他社掲載分を含めご紹介できます!何社も回る手間なくお部屋探しが可能です。現地待ち合わせも可能!
| 築年月 | 2018年2月 |
|---|---|
| 構造 | 軽量鉄骨造 |
| 所在階 | 3階建ての3階 |
| 向き | 南 |
| バルコニー面積 | - |
| 駐車場 | なし |
| 入居可能日 | 即可 |
| 賃貸借の種類 | 普通賃貸借 |
| 契約期間 | 1年 |
| 共益費・管理費 | 6,500円 |
| 敷金 | 3万円 |
| 礼金 | 250,000円 |
| 保証金 | - |
| 償却金 | - |
| 更新料 | - |
| 保証料等 | 要加入(1年10000円) |
| 保証会社補足 | 初回総額の30% 月次保証料1.3% |
| 取引態様 | 媒介 |
| 情報更新日 | 2025年11月9日 |
| 次回更新予定日 | 2025年11月16日 |
設備・特記
《設備》バス・トイレ別/浴室乾燥機/追い焚き風呂/温水洗浄便座/エアコン/オートロック/TVモニター付きインターホン/CATV/BSアンテナ/CSアンテナ/光回線/最上階/角部屋/宅配ボックス/都市ガス/システムキッチン/カウンターキッチン/ガスコンロ(3口)/フローリング/室内洗濯機置場/下駄箱/クローゼット
《その他一時金》-
《その他月額費用》-
備考
《その他》鍵交換代:16500円
※現状と異なる場合は、現状を優先させていただきます。取引態様の欄に「媒介」と表示された物件は「仲介物件」です。ご成約の際には仲介手数料を申し受けます。