12.5万円
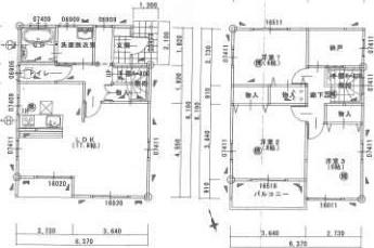
3SLDK
種別 テラスハウス
専有面積 96.87㎡
おすすめ
ポイント
駐車場2台無料★システムキッチン★TVドアホン★エアコン★ウォシュレット等設備充実★電話予約&成約でQUOカード500円★案内は現地待ち合わせOK★【ピタットハウス姫路駅南口店】
| 築年月 | 2013年3月 |
|---|---|
| 構造 | 木造 |
| 所在階 | 2階建ての1階~2階 |
| 向き | 南 |
| バルコニー面積 | - |
| 駐車場 | なし |
| 入居可能日 | 相談 |
| 賃貸借の種類 | 普通賃貸借 |
| 契約期間 | 2年 |
| 共益費・管理費 | 1,000円 |
| 敷金 | - |
| 礼金 | 250,000円 |
| 保証金 | - |
| 償却金 | - |
| 更新料 | - |
| 保証料等 | - |
| 保証会社補足 | 初回家賃総額50%(保証人なしの場合100%) |
| 取引態様 | 媒介 |
| 情報更新日 | 2026年4月17日 |
| 次回更新予定日 | 2026年4月24日 |
設備・特記
《設備》フローリング/室内洗濯機置場/下駄箱/クローゼット/バス・トイレ別/追い焚き風呂/洗髪洗面化粧台/温水洗浄便座/シャワー/エアコン/TVモニター付きインターホン/CATV/BSアンテナ/CSアンテナ/光回線/最上階/プロパンガス/カウンターキッチン/IHコンロ
《物件の特徴》高齢者歓迎/子供可
《その他一時金》-
《その他月額費用》-
備考
※現状と異なる場合は、現状を優先させていただきます。取引態様の欄に「媒介」と表示された物件は「仲介物件」です。ご成約の際には仲介手数料を申し受けます。