36.8万円
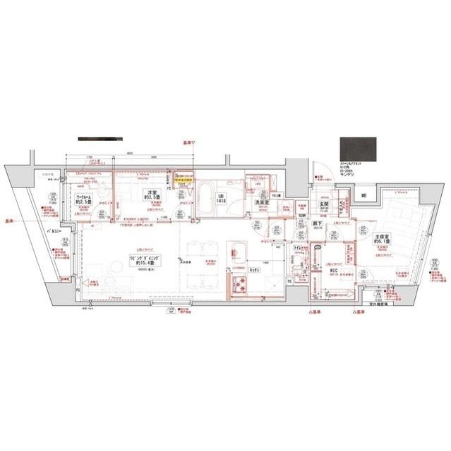
2SLDK
種別 マンション
専有面積 66.42㎡
おすすめ
ポイント
■ペット飼育相談可(小型犬もしくは猫1匹・敷金1か月追加)
| 築年月 | 2004年11月 |
|---|---|
| 構造 | 鉄骨鉄筋コンクリート造 |
| 所在階 | 11階建ての3階 |
| 向き | 南 |
| バルコニー面積 | - |
| 駐車場 | なし |
| 入居可能日 | 2025年11月20日予定 |
| 賃貸借の種類 | 普通賃貸借 |
| 契約期間 | 2年 |
| 共益費・管理費 | 10,000円 |
| 敷金 | 36.8万円 |
| 礼金 | - |
| 保証金 | - |
| 償却金 | - |
| 更新料 | 更新後賃料:1ヶ月 |
| 保証料等 | 要加入(2年16550円) |
| 保証会社補足 | クレディセゾン 保証料:賃料等の20%(最低1.5万円)、2年目〜:1万円/年、口座振替手数料借主負担 |
| 取引態様 | 媒介 |
| 情報更新日 | 2025年11月7日 |
| 次回更新予定日 | 2025年11月13日 |
設備・特記
《設備》バス・トイレ別/浴室乾燥機/追い焚き風呂/独立洗面台/温水洗浄便座/エアコン/オートロック/防犯カメラ/CATV/エレベータ/宅配ボックス/駐輪場/バイク置場/システムキッチン
《物件の特徴》ペット相談可
《その他一時金》鍵交換代:33000円 / 清掃費:100320円 / エアコン清掃費:57750円
《その他月額費用》-
備考
《その他》・入居時:鍵交換代・火災保険料・退去時:清掃費・エアコン清掃費19500円/1台につき・リノベーション2025年11月上旬完工予定・敷地内駐車場駐輪場は空き無し・常設違約金:1年未満解約時賃料共益費1ケ月あり
※現状と異なる場合は、現状を優先させていただきます。取引態様の欄に「媒介」と表示された物件は「仲介物件」です。ご成約の際には仲介手数料を申し受けます。