27万円
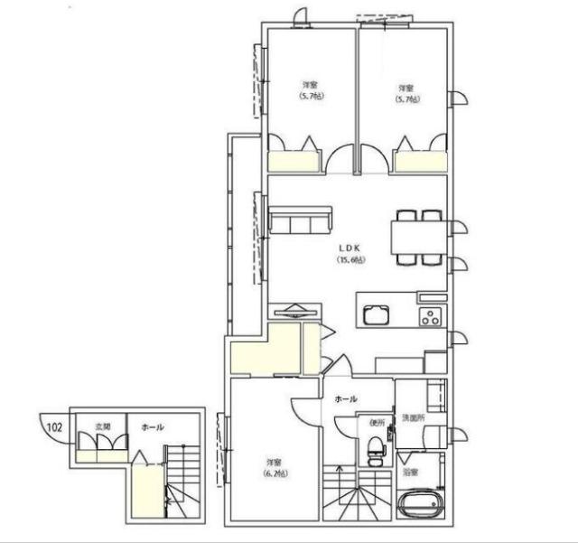
3LDK
種別 アパート
専有面積 81.78㎡
おすすめ
ポイント
\*日当り良好◎ペット飼育・事務所利用もご相談ください!*/
特別賞受賞店舗『ピタットハウス都立大学店』でお部屋探し! 安心の取引実績で多数の高評価を頂いております。詳細に関しては、公式LINEでのお問合わせもご対応可能です。LINE ID【@277wpwnn】
| 築年月 | 2019年3月 |
|---|---|
| 構造 | 軽量鉄骨造 |
| 所在階 | 2階建ての1階~2階 |
| 向き | - |
| バルコニー面積 | - |
| 駐車場 | 空きなし |
| 入居可能日 | 相談 |
| 賃貸借の種類 | 普通賃貸借 |
| 契約期間 | 2年 |
| 共益費・管理費 | 10,000円 |
| 敷金 | ペット積み増し(27万円) 小型件もしくは猫1匹まで相談 |
| 礼金 | 270,000円 |
| 保証金 | - |
| 償却金 | - |
| 更新料 | 更新前賃料:1ヶ月 |
| 保証料等 | - |
| 保証会社補足 | 詳細はお問い合わせください。 |
| 取引態様 | 媒介 |
| 情報更新日 | 2026年3月23日 |
| 次回更新予定日 | 2026年3月30日 |
設備・特記
《設備》フローリング/下駄箱/クローゼット/メゾネット/眺望良好/2面採光/3面採光/バス・トイレ別/浴室乾燥機/追い焚き風呂/洗髪洗面化粧台/独立洗面台/温水洗浄便座/エアコン/TVモニター付きインターホン/ピッキング対策キー/インターネット対応/角部屋/宅配ボックス/敷地内駐車場/駐輪場/閑静な住宅街/都市ガス/デザイナーズ/システムキッチン/カウンターキッチン/ガスコンロ(3口)
《物件の特徴》ペット相談可/二人入居相談/敷金不要
《その他一時金》鍵交換費用:22000円 / 24時間受付システム:26400円
《その他月額費用》火災保険料:1100円/月
備考
《バイク置き場》なし
《駐輪場》有り(無料)
※現状と異なる場合は、現状を優先させていただきます。取引態様の欄に「媒介」と表示された物件は「仲介物件」です。ご成約の際には仲介手数料を申し受けます。