9.8万円
4K
種別 一戸建
専有面積 81.50㎡
おすすめ
ポイント
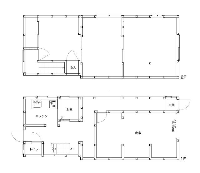
耐震改修リフォーム済み!店舗や事務所も相談可◎
バイクガレージとしても使用可能!
| 築年月 | 1968年10月 |
|---|---|
| 構造 | 木造 |
| 所在階 | 2階建ての1階~2階 |
| 向き | - |
| バルコニー面積 | - |
| 駐車場 | 有り(無料) |
| 入居可能日 | 相談 |
| 賃貸借の種類 | 定期賃貸借 |
| 契約期間 | 2年 |
| 共益費・管理費 | 3,300円 |
| 敷金 | 19.6万円 |
| 礼金 | 98,000円 |
| 保証金 | - |
| 償却金 | 9.8万円(年) |
| 更新料 | - |
| 保証料等 | 要加入 |
| 保証会社補足 | - |
| 取引態様 | 媒介 |
| 情報更新日 | 2026年4月14日 |
| 次回更新予定日 | 2026年4月19日 |
設備・特記
《設備》独立洗面台/温水洗浄便座/トイレ未使用/室内洗濯機置場/リフォーム済/システムキッチン/キッチン未使用/最上階/角部屋/敷地内駐車場/都市ガス/耐震補強工事済
《物件の特徴》事務所使用可
《その他一時金》鍵交換代金:30000円
《その他月額費用》-
備考
《クレジットカード決済》初期費用クレジット決済可
《バイク置き場》有り(無料)
《駐輪場》有り(無料)
※現状と異なる場合は、現状を優先させていただきます。取引態様の欄に「媒介」と表示された物件は「仲介物件」です。ご成約の際には仲介手数料を申し受けます。