42万円
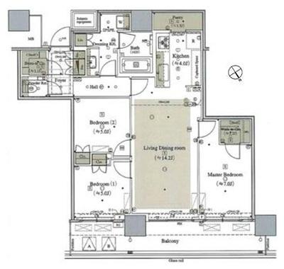
3LDK
種別 マンション
専有面積 83.95㎡
おすすめ
ポイント
馬車道駅徒歩1分の3LDKおすすめ貸マンション 定期借家です
2019年10月築!83.95㎡の便利な横浜高速鉄道みなとみらい線沿線!
| 築年月 | 2019年10月 |
|---|---|
| 構造 | 鉄筋コンクリート造 |
| 所在階 | 地下2階・地上59階建ての6階 |
| 向き | 北東 |
| バルコニー面積 | - |
| 駐車場 | なし |
| 入居可能日 | 2026年6月30日予定 |
| 賃貸借の種類 | 定期賃貸借 |
| 契約期間 | 2年 |
| 共益費・管理費 | 20,000円 |
| 敷金 | 42万円 + ペット積み増し(42万円) |
| 礼金 | 420,000円 |
| 保証金 | - |
| 償却金 | - |
| 更新料 | 更新後賃料:1ヶ月 |
| 保証料等 | 要加入(2年18000円) |
| 保証会社補足 | 加入要 初回:月額総支払額の50% 以後、1年毎に10,000円(保証会社:CASA) |
| 取引態様 | 媒介 |
| 情報更新日 | 2026年3月20日 |
| 次回更新予定日 | 2026年3月28日 |
設備・特記
《設備》オートロック/エアコン/バス・トイレ別/追い焚き風呂/独立洗面台/温水洗浄便座/シャワー/洗面所/トイレ/洗面台/バルコニー/室内洗濯機置場/クローゼット/収納スペース/シューズIC/ガスコンロ(3口)/分譲マンションタイプ/エレベータ/宅配ボックス/共用パーティルーム/フロントサービス
《物件の特徴》ペット相談可
《その他一時金》-
《その他月額費用》24時間駆けつけサービス:1100円/月
備考
《クレジットカード決済》初期費用クレジット決済可
《バイク置き場》なし
《駐輪場》なし
《その他》一度は住んでみたい設備充実の【タワーマンション】の賃貸です! ペット飼育相談可の賃貸物件に住む癒しの空間! 宅配BOX完備で不在がちな方にも、荷物を受取れる便利設備! オートロック設備完備で安心生活をしっかりサポート! 当店なら各カード会社で初期費用クレジット決済可能!
※現状と異なる場合は、現状を優先させていただきます。取引態様の欄に「媒介」と表示された物件は「仲介物件」です。ご成約の際には仲介手数料を申し受けます。