9.68万円
店舗
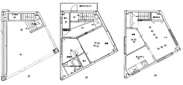
種別 店舗
専有面積 53.12㎡
おすすめ
ポイント
■即入居可見学可■■浜の茶屋くら寿司近く視認性良し■
1棟貸し貸事務所店舗■駐車場1階に2台ほど可能幅要確認■事務所やサロン系おすすめ■近隣駐車場有無不明■楽器演奏、ペット可、居住利用可■
| 築年月 | 1982年8月 |
|---|---|
| 構造 | 重量鉄骨造 |
| 所在階 | 3階建ての2階~3階 |
| 向き | - |
| バルコニー面積 | - |
| 駐車場 | 有り(無料) |
| 入居可能日 | 即可 |
| 賃貸借の種類 | 普通賃貸借 |
| 契約期間 | 2年 |
| 共益費・管理費 | - |
| 敷金 | 17.6万円 |
| 礼金 | - |
| 保証金 | - |
| 償却金 | - |
| 更新料 | - |
| 保証料等 | 要加入 |
| 保証会社補足 | 詳細はお問い合わせください |
| 取引態様 | 媒介 |
| 情報更新日 | 2026年2月13日 |
| 次回更新予定日 | 2026年2月20日 |
設備・特記
《設備》エアコン/敷地内駐車場/駐車場2台無料/システムキッチン
《物件の特徴》ペット相談可/ピアノ相談可/楽器使用可
《その他一時金》-
《その他月額費用》-
備考
※現状と異なる場合は、現状を優先させていただきます。取引態様の欄に「媒介」と表示された物件は「仲介物件」です。ご成約の際には仲介手数料を申し受けます。