5.7万円
2DK
種別 アパート
専有面積 45.42㎡
おすすめ
ポイント
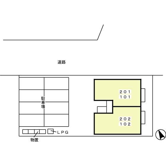
駐車場2台付き(縦列)!!
| 築年月 | 2005年3月 |
|---|---|
| 構造 | 軽量鉄骨造 |
| 所在階 | 2階建ての2階 |
| 向き | - |
| バルコニー面積 | - |
| 駐車場 | 有り(無料) |
| 入居可能日 | 相談 |
| 賃貸借の種類 | 普通賃貸借 |
| 契約期間 | 2年 |
| 共益費・管理費 | 3,000円 |
| 敷金 | - |
| 礼金 | 57,000円 |
| 保証金 | - |
| 償却金 | - |
| 更新料 | 57,000円 |
| 保証料等 | 要加入 |
| 保証会社補足 | - |
| 取引態様 | 媒介 |
| 情報更新日 | 2025年11月5日 |
| 次回更新予定日 | 2025年11月13日 |
設備・特記
《設備》TVモニター付きインターホン/火災警報器(報知機)/エアコン/バス・トイレ別/追い焚き風呂/洗髪洗面化粧台/温水洗浄便座/シャワー/フローリング/バルコニー/室内洗濯機置場/下駄箱/クローゼット/物置/敷地内駐車場/プロパンガス/公営水道/CATV/BSアンテナ
《その他一時金》ルームクリーニング料金:60500円 / ICロック電池(初回):2750円
《その他月額費用》-
備考
《その他》機関保証加入必須。 機関保証料は月額賃料等総額の3.4%+800円/月(その他商品あり) 65歳以上の方の契約は定期借家契約(2年再契約型)、機関保証の加入が必須となります(初回保証料:月額賃料等合計額×100%,更新:2万円/1年) LPガス料金はご契約前にLPガス事業者にご確認いただけます。
※現状と異なる場合は、現状を優先させていただきます。取引態様の欄に「媒介」と表示された物件は「仲介物件」です。ご成約の際には仲介手数料を申し受けます。