6万円
1LDK
種別 アパート
専有面積 45.42㎡
おすすめ
ポイント
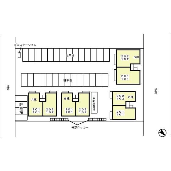
インターネット無料です!(工事後使用可) !大和ハウス施工★那須塩原駅まで徒歩5分 外部物置付☆
| 築年月 | 2006年1月 |
|---|---|
| 構造 | 軽量鉄骨造 |
| 所在階 | 2階建ての1階 |
| 向き | - |
| バルコニー面積 | - |
| 駐車場 | 有り(無料) |
| 入居可能日 | 2026年1月10日予定 |
| 賃貸借の種類 | 普通賃貸借 |
| 契約期間 | 2年 |
| 共益費・管理費 | 4,000円 |
| 敷金 | - |
| 礼金 | 60,000円 |
| 保証金 | - |
| 償却金 | - |
| 更新料 | 60,000円 |
| 保証料等 | 要加入 |
| 保証会社補足 | - |
| 取引態様 | 媒介 |
| 情報更新日 | 2025年11月25日 |
| 次回更新予定日 | 2025年12月2日 |
設備・特記
《設備》エアコン/TVモニター付きインターホン/火災警報器(報知機)/シャッター雨戸/インターネット対応/BSアンテナ/敷地内駐車場/駐輪場/プロパンガス/公営水道/カウンターキッチン/フローリング/バルコニー/室内洗濯機置場/下駄箱/床下収納/物置/バス・トイレ別/追い焚き風呂/洗髪洗面化粧台/温水洗浄便座/シャワー
《その他一時金》ルームクリーニング料金:60500円
《その他月額費用》-
備考
《その他》機関保証加入必須。初回保証料35000円、月額保証料賃料等総額の1%+800円/月(その他商品あり) 65歳以上の方の契約は定期借家契約(2年再契約型)、機関保証の加入が必須となります(初回保証料:月額賃料等合計額×100%,更新:2万円/1年) LPガス料金はご契約前にLPガス事業者にご確認いただけます。
※現状と異なる場合は、現状を優先させていただきます。取引態様の欄に「媒介」と表示された物件は「仲介物件」です。ご成約の際には仲介手数料を申し受けます。