6.5万円
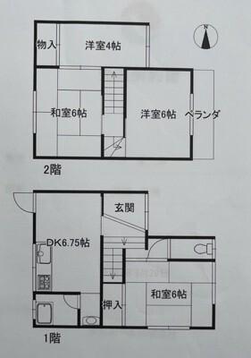
4DK
種別 一戸建
専有面積 60.94㎡
おすすめ
ポイント
            
                敷金・礼金 0・0! ペット・事業用相談可!
                
            
            
                近隣月極駐車場あります。
            
            
 
            
         
                
             
                
             
                
            | 築年月 | 1980年9月 | 
|---|---|
| 構造 | 木造 | 
| 所在階 | 2階建ての1階~2階 | 
| 向き | 東 | 
| バルコニー面積 | - | 
| 駐車場 | 有り(無料) | 
| 入居可能日 | 即可 | 
| 賃貸借の種類 | 普通賃貸借 | 
| 契約期間 | 2年 | 
| 共益費・管理費 | - | 
| 敷金 | - | 
| 礼金 | - | 
| 保証金 | - | 
| 償却金 | - | 
| 更新料 | - | 
| 保証料等 | 要加入(2年15000円) | 
| 保証会社補足 | 初回:総賃料 保証人無60% 有50% 月額:800円 | 
| 取引態様 | 媒介 | 
| 情報更新日 | 2025年10月30日 | 
| 次回更新予定日 | 2025年11月7日 | 
設備・特記
                    
                        
                            
                                《設備》バス・トイレ別/温水洗浄便座/洗面化粧台/押入/敷地内駐車場/都市ガス 
                            
                        
                        
                            
                                《物件の特徴》ペット相談可/事務所使用可/即入居可/敷金不要/礼金不要 
                            
                        
                    
                    《その他一時金》- 
                    《その他月額費用》口座振替手数料:330円/月 
                    
                
備考
                    
                    
                    
                    
                    
                    
                        《その他》現地駐車場サイズ 間口2.45m×奥行5.1m×高さ1.45m 現地確認要 退去時ルームクリーング代6万円必要
                    
                
※現状と異なる場合は、現状を優先させていただきます。取引態様の欄に「媒介」と表示された物件は「仲介物件」です。ご成約の際には仲介手数料を申し受けます。