7.15万円
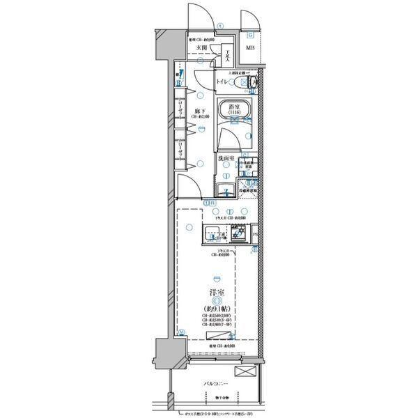
1K
種別 マンション
専有面積 29.64㎡
おすすめ
ポイント
2路線使用可能、駅近で大通り沿いなので夜も安心です!
Wi-Fi無料、オートロック付き、システムキッチン付きです♪ ★名古屋市内どこでもご紹介・ご提案可能です★ ご内覧〜ご契約までWEB対応可能です♪ 見学予約受付中♪お気軽にお越し下さい☆
| 築年月 | 2019年8月 |
|---|---|
| 構造 | 鉄筋コンクリート造 |
| 所在階 | 10階建ての4階 |
| 向き | 西 |
| バルコニー面積 | - |
| 駐車場 | 空きなし |
| 入居可能日 | 2025年12月31日予定 |
| 賃貸借の種類 | 普通賃貸借 |
| 契約期間 | 2年 |
| 共益費・管理費 | 7,000円 |
| 敷金 | - |
| 礼金 | - |
| 保証金 | - |
| 償却金 | - |
| 更新料 | 更新後賃料:1ヶ月 |
| 保証料等 | 要加入(2年18000円) |
| 保証会社補足 | 規定あり |
| 取引態様 | 媒介 |
| 情報更新日 | 2025年12月15日 |
| 次回更新予定日 | 2025年12月23日 |
設備・特記
《設備》エアコン/バス・トイレ別/浴室乾燥機/洗髪洗面化粧台/独立洗面台/温水洗浄便座/シャワー/フローリング/バルコニー/室内洗濯機置場/下駄箱/クローゼット/全居室フローリング/寝室8畳以上/全居室洋室/全居室8畳以上/一部フローリング/システムキッチン/ガスコンロ(2口)/エレベータ/宅配ボックス/敷地内駐車場/駐輪場/都市ガス/敷地内ごみ置き場/バイク置場/インターネット対応/インターネット無料/BSアンテナ/CSアンテナ/光回線/オートロック/TVモニター付きインターホン
《物件の特徴》オンライン内見可/オンライン相談可/IT重説対応物件/敷金不要/礼金不要/保証人不要/初期費用カード決済可
《その他一時金》クリーニング代:44000円
《その他月額費用》安心サポート:1100円/月
備考
《クレジットカード決済》初期費用クレジット決済可
《バイク置き場》有り 1000円/月
《駐輪場》有り(無料)
《その他》退去時の室内クリーニング負担があります。 エアコン内部洗浄代 退去時 11,000円(税込
※現状と異なる場合は、現状を優先させていただきます。取引態様の欄に「媒介」と表示された物件は「仲介物件」です。ご成約の際には仲介手数料を申し受けます。