19.5万円
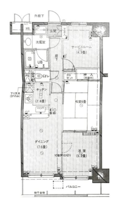
2SDK
種別 マンション
専有面積 57.08㎡
おすすめ
ポイント
人気の錦糸町エリア★広々2DK★二面採光の角部屋です★
オートロック・モニタ付きインターホン完備でセキュリティ万全★ 買い物に便利なコンビニ・スーパー徒歩圏内にございます♪ お部屋探しはピタットハウス清澄白河店へ!!
| 築年月 | 1995年8月 |
|---|---|
| 構造 | 鉄骨鉄筋コンクリート造 |
| 所在階 | 地下1階・地上14階建ての9階 |
| 向き | - |
| バルコニー面積 | - |
| 駐車場 | なし |
| 入居可能日 | 相談 |
| 賃貸借の種類 | 普通賃貸借 |
| 契約期間 | 2年 |
| 共益費・管理費 | 10,000円 |
| 敷金 | - |
| 礼金 | 195,000円 |
| 保証金 | - |
| 償却金 | - |
| 更新料 | 更新後賃料:1ヶ月 |
| 保証料等 | 要加入 |
| 保証会社補足 | 初回保証料:総賃料50% 年額:12000円 |
| 取引態様 | 媒介 |
| 情報更新日 | 2026年1月26日 |
| 次回更新予定日 | 2026年2月2日 |
設備・特記
《設備》インターネット対応/オートロック/TVモニター付きインターホン/エアコン/バス・トイレ別/浴室乾燥機/追い焚き風呂/洗髪洗面化粧台/独立洗面台/温水洗浄便座/脱衣所/洗面所にドア/フローリング/バルコニー/室内洗濯機置場/下駄箱/クローゼット/和室/クロゼット2ヶ所/2WAYバルコニー/一部フローリング/2面採光/システムキッチン/ガスコンロ(3口)/グリル/角部屋/分譲マンションタイプ/外壁タイル張り/エレベータ/宅配ボックス/駐輪場/敷地内ごみ置き場/常時ゴミ出し可能/バイク置場
《物件の特徴》ペット相談可/二人入居可/敷金不要
《その他一時金》鍵交換費用:33000円
《その他月額費用》-
備考
※現状と異なる場合は、現状を優先させていただきます。取引態様の欄に「媒介」と表示された物件は「仲介物件」です。ご成約の際には仲介手数料を申し受けます。