14.5万円
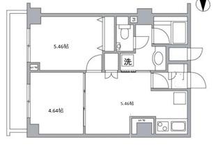
2DK
種別 マンション
専有面積 43.17㎡
おすすめ
ポイント
木場駅7分★使いやすい間取りの2DKです★
便利な二口コンロ付システムキッチン★収納スペースも充実★ 買い物に便利なコンビニ、スーパー徒歩圏内にございます♪ お部屋探しはピタットハウス清澄白河店へ!!
| 築年月 | 1985年9月 |
|---|---|
| 構造 | 鉄骨鉄筋コンクリート造 |
| 所在階 | 7階建ての2階 |
| 向き | 東 |
| バルコニー面積 | - |
| 駐車場 | なし |
| 入居可能日 | 2026年3月31日予定 |
| 賃貸借の種類 | 普通賃貸借 |
| 契約期間 | 2年 |
| 共益費・管理費 | 12,000円 |
| 敷金 | 29万円 |
| 礼金 | 145,000円 |
| 保証金 | - |
| 償却金 | - |
| 更新料 | 更新前賃料:1ヶ月 |
| 保証料等 | 要加入(27000円) |
| 保証会社補足 | 初回保証料:総賃料の100% 更新時:11000円 |
| 取引態様 | 媒介 |
| 情報更新日 | 2026年3月19日 |
| 次回更新予定日 | 2026年3月26日 |
設備・特記
《設備》オートロック/TVモニター付きインターホン/エアコン/バス・トイレ別/浴室乾燥機/追い焚き風呂/洗髪洗面化粧台/独立洗面台/温水洗浄便座/脱衣所/洗面所にドア/フローリング/バルコニー/室内洗濯機置場/下駄箱/クローゼット/収納スペース/全居室フローリング/全居室洋室/2WAYバルコニー/システムキッチン/ガスコンロ(2口)/角部屋/外壁タイル張り/エレベータ/宅配ボックス/駐輪場/インターネット対応
《物件の特徴》ペット不可/二人入居可/子供可/事務所利用不可
《その他一時金》鍵交換費用:33000円 / 24時間サポート:19800円 / 事務手数料:17050円 / 消臭消毒費用:22000円
《その他月額費用》-
備考
《更新事務手数料》:72,500円
《駐輪場》有り(無料)
※現状と異なる場合は、現状を優先させていただきます。取引態様の欄に「媒介」と表示された物件は「仲介物件」です。ご成約の際には仲介手数料を申し受けます。