22.9万円
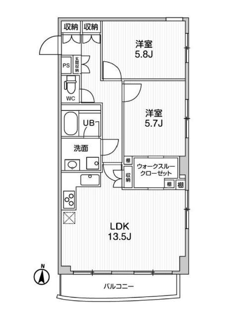
2LDK
種別 マンション
専有面積 59.40㎡
おすすめ
ポイント
人気の南向き☆菊川駅まで徒歩4分の好立地☆
3面採光で風通し良好★外出時に便利な宅配ボックス付き★ お買い物に便利なコンビニ・スーパー徒歩圏内にございます♪ お部屋探しはピタットハウス住吉店へ!
| 築年月 | 1994年3月 |
|---|---|
| 構造 | 鉄筋コンクリート造 |
| 所在階 | 6階建ての4階 |
| 向き | 南 |
| バルコニー面積 | - |
| 駐車場 | 空きなし |
| 入居可能日 | 即可 |
| 賃貸借の種類 | 普通賃貸借 |
| 契約期間 | 2年 |
| 共益費・管理費 | 10,000円 |
| 敷金 | 22.9万円 |
| 礼金 | 229,000円 |
| 保証金 | - |
| 償却金 | - |
| 更新料 | 更新後賃料:1ヶ月 |
| 保証料等 | 要加入(2年21000円) |
| 保証会社補足 | 初回保証料:祖賃料の50% 年間:10,000円 |
| 取引態様 | 媒介 |
| 情報更新日 | 2025年11月11日 |
| 次回更新予定日 | 2025年11月18日 |
設備・特記
《設備》インターネット対応/オートロック/TVモニター付きインターホン/防犯カメラ/エアコン/バス・トイレ別/独立洗面台/温水洗浄便座/フローリング/バルコニー/室内洗濯機置場/下駄箱/クローゼット/南面バルコニー/ウォークスルークロゼット/南向き/全居室洋室/クロゼット2ヶ所/クロゼット3ヶ所/2WAYバルコニー/2面採光/3面採光/東南角住戸/3方角住戸/南面リビング/システムキッチン/ガスコンロ(3口)/グリル/L字型キッチン/角部屋/エレベータ/宅配ボックス/敷地内駐車場/駐輪場/都市ガス/敷地内ごみ置き場
《その他一時金》契約事務手数料:11000円 / 鍵交換費用:22000円
《その他月額費用》-
備考
※現状と異なる場合は、現状を優先させていただきます。取引態様の欄に「媒介」と表示された物件は「仲介物件」です。ご成約の際には仲介手数料を申し受けます。