50万円
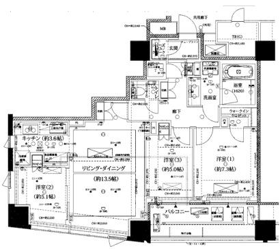
3LDK
種別 マンション
専有面積 82.05㎡
おすすめ
ポイント
永田町・赤坂見附が生活圏!
複数路線利用可能で都内主要エリアへもアクセス良好! のびやかに過ごせる3LDK
| 築年月 | 2014年3月 |
|---|---|
| 構造 | 鉄筋コンクリート造 |
| 所在階 | 地下1階・地上16階建ての14階 |
| 向き | 南 |
| バルコニー面積 | - |
| 駐車場 | 空きなし |
| 入居可能日 | 2026年2月10日予定 |
| 賃貸借の種類 | 普通賃貸借 |
| 契約期間 | 2年 |
| 共益費・管理費 | 20,000円 |
| 敷金 | 50万円 |
| 礼金 | 500,000円 |
| 保証金 | - |
| 償却金 | - |
| 更新料 | 更新後賃料:1ヶ月 |
| 保証料等 | 要加入(2年24000円) |
| 保証会社補足 | 初回保証料:月額賃料等の50% 月額保証料:月額賃料等の1% 年間保証料:10,000円 |
| 取引態様 | 媒介 |
| 情報更新日 | 2025年12月5日 |
| 次回更新予定日 | 2025年12月12日 |
設備・特記
《設備》システムキッチン/IHコンロ/グリル/分譲マンションタイプ/エレベータ/宅配ボックス/敷地内駐車場/都市ガス/敷地内ごみ置き場/オートロック/TVモニター付きインターホン/エアコン/バス・トイレ別/浴室乾燥機/追い焚き風呂/独立洗面台/温水洗浄便座/洗面化粧台/フローリング/バルコニー/室内洗濯機置場/クローゼット/トランクルーム/ウォークインクロゼット/シューズIC/24時間換気システム
《物件の特徴》家賃deポイント対象物件
《その他一時金》ホームマイスター24:16500円
《その他月額費用》-
備考
《その他》月々の賃料の支払いは、夢なびVISAカードによるクレジットカード払いになります。
※現状と異なる場合は、現状を優先させていただきます。取引態様の欄に「媒介」と表示された物件は「仲介物件」です。ご成約の際には仲介手数料を申し受けます。