17.9万円
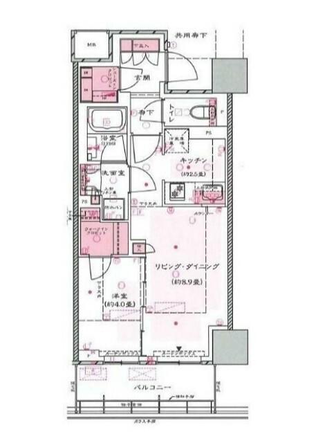
1LDK
種別 マンション
専有面積 40.72㎡
おすすめ
ポイント
埼玉県内のお部屋探しはピタットハウス与野店にお任せください♪
ピタットハウス与野店は賃貸仲介及び賃貸管理も行っております。ご来店頂いたお客様へはネット未公開のお部屋もご紹介しております! 弊社掲載以外のお部屋もご紹介可能です!お部屋探しはピタットハウス与野店へ♪
| 築年月 | 2024年5月 |
|---|---|
| 構造 | 鉄筋コンクリート造 |
| 所在階 | 28階建ての6階 |
| 向き | 南 |
| バルコニー面積 | - |
| 駐車場 | なし |
| 入居可能日 | 2026年5月10日予定 |
| 賃貸借の種類 | 普通賃貸借 |
| 契約期間 | 2年 |
| 共益費・管理費 | 20,000円 |
| 敷金 | ペット積み増し(17.9万円) ペット2匹迄飼育可 小型の犬、猫 50cm且つ体重10㎏まで |
| 礼金 | - |
| 保証金 | - |
| 償却金 | - |
| 更新料 | 更新後賃料:1ヶ月 |
| 保証料等 | 要加入(2年23000円) |
| 保証会社補足 | 初回50% 月額1% |
| 取引態様 | 媒介 |
| 情報更新日 | 2026年3月17日 |
| 次回更新予定日 | 2026年3月24日 |
設備・特記
《設備》バルコニー/室内洗濯機置場/下駄箱/クローゼット/ウォークインクローゼット/全居室収納/全居室洋室/バス・トイレ別/浴室乾燥機/追い焚き風呂/独立洗面台/温水洗浄便座/シャワー/洗面化粧台/洗面所/トイレ/洗面台/脱衣所/洗面所にドア/エアコン/床暖房/オートロック/TVモニター付きインターホン/防犯カメラ/インターネット対応/インターネット無料/エレベータ/宅配ボックス/都市ガス/敷地内ごみ置き場/ペット専用設備/公営水道/下水/システムキッチン/ガスコンロ(2口)/ディスポーザー
《物件の特徴》ペット相談可/郵便局近く/敷金不要/礼金不要/保証金不要
《その他一時金》ハウスクリーニング費用:63800円 / エアコンクリーニング費用:19800円 / 鍵交換代:66000円
《その他月額費用》-
備考
《その他》ハウスクリーニング費用63800円 エアコンクリーニング費用 1台につき119800円 鍵交換代 66000円
※現状と異なる場合は、現状を優先させていただきます。取引態様の欄に「媒介」と表示された物件は「仲介物件」です。ご成約の際には仲介手数料を申し受けます。