115.92万円
店舗
種別 店舗
専有面積 139.35㎡
おすすめ
ポイント
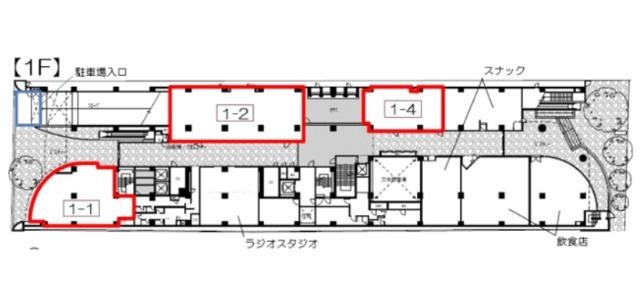
浦和駅徒歩5分・飲食店居抜き物件
共用部・ホテルエリアにてリニューアル工事実施予定 機械式駐車場空き有・フリーレント相談可能・定期借家3年(再契約可)期間相談可
| 築年月 | 1998年9月 |
|---|---|
| 構造 | 鉄骨鉄筋コンクリート造 |
| 所在階 | 地下1階・地上12階建ての1階 |
| 向き | - |
| バルコニー面積 | - |
| 駐車場 | 有り 月額39,600円 |
| 入居可能日 | 即可 |
| 賃貸借の種類 | 定期賃貸借 |
| 契約期間 | 3年 |
| 共益費・管理費 | - |
| 敷金 | 632.25万円 |
| 礼金 | 1,053,750円 |
| 保証金 | - |
| 償却金 | - |
| 更新料 | 更新後賃料:1ヶ月 |
| 保証料等 | 要加入 |
| 保証会社補足 | 詳細はお問い合わせください。 |
| 取引態様 | 媒介 |
| 情報更新日 | 2025年12月8日 |
| 次回更新予定日 | 2025年12月15日 |
設備・特記
《設備》敷地内駐車場
《その他一時金》-
《その他月額費用》-
備考
《その他》定期借家3年 再契約料 賃料1ヶ月分 解約予告6ヵ月前 1階区画にはグリストラップ・ダクト設置済み(清掃は貸主指定業者にて実施費用負担は借主) 給排水・ガス引込あり 個別空調使用可(全区画に室内機残置物あり) 看板設置個所複数あり(看板料は場所によって相談)駐車場(敷金1ヶ月・手数料1.1ヶ月・鍵作成費用1100円 サイズ 全長5000㎜・全高1550㎜・全幅1850㎜・総重量1900㎏)
※現状と異なる場合は、現状を優先させていただきます。取引態様の欄に「媒介」と表示された物件は「仲介物件」です。ご成約の際には仲介手数料を申し受けます。