3.2万円
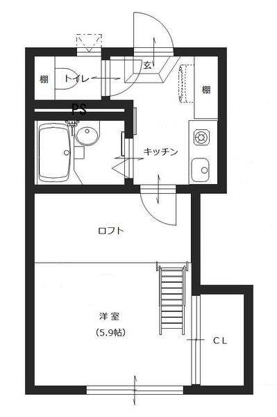
1K
種別 アパート
専有面積 19.14㎡
おすすめ
ポイント
室内一部リフォーム済み!インターネット無料のロフト付き1K♪
ブランチ仙台(複合商業施設)まで徒歩約3分!お買い物に便利な立地です! エアコン・昇降式室内物干し・TVインターホンなど充実した設備仕様となっております★
| 築年月 | 1989年8月 |
|---|---|
| 構造 | 木造 |
| 所在階 | 2階建ての1階 |
| 向き | 南東 |
| バルコニー面積 | - |
| 駐車場 | 有り 月額5,000円 |
| 入居可能日 | 即可 |
| 賃貸借の種類 | 普通賃貸借 |
| 契約期間 | 2年 |
| 共益費・管理費 | 2,000円 |
| 敷金 | - |
| 礼金 | - |
| 保証金 | - |
| 償却金 | - |
| 更新料 | - |
| 保証料等 | 要加入 |
| 保証会社補足 | 初回保証料 賃料等総額50%・口座振替手数料550円(税込)/月・継続保証料13,000円 |
| 取引態様 | 媒介 |
| 情報更新日 | 2026年3月26日 |
| 次回更新予定日 | 2026年5月7日 |
設備・特記
《設備》敷地内駐車場/プロパンガス/IHコンロ/ロフト/下駄箱/クローゼット/室内物干し/陽当り良好/バス・トイレ別/温水洗浄便座/エアコン/TVモニター付きインターホン/インターネット無料/CATV
《その他一時金》鍵交換費用:22000円 / 退去時クリーニング費用:49500円 / 駐輪ステッカー代:550円
《その他月額費用》トータル安心サポート24::1980円/月
備考
《更新事務手数料》:22,000円
《その他》※法人契約の場合 敷金1ヶ月・礼金1ヶ月
※現状と異なる場合は、現状を優先させていただきます。取引態様の欄に「媒介」と表示された物件は「仲介物件」です。ご成約の際には仲介手数料を申し受けます。