7万円
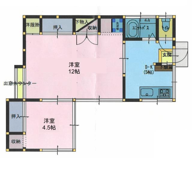
2DK
種別 一戸建
専有面積 50.51㎡
おすすめ
ポイント
猫1匹のみ飼育可(礼金1ヶ月プラスとなります)
2022年9月に内外装リフォームしております。戸建てなので、音が気になる方におすすめです。駐車場も2台付いております。
| 築年月 | 1975年6月 |
|---|---|
| 構造 | 木造 |
| 所在階 | 1階建ての1階 |
| 向き | 南西 |
| バルコニー面積 | - |
| 駐車場 | 有り(無料) |
| 入居可能日 | 2026年1月31日予定 |
| 賃貸借の種類 | 普通賃貸借 |
| 契約期間 | 2年 |
| 共益費・管理費 | - |
| 敷金 | 7万円 |
| 礼金 | 70,000円 |
| 保証金 | - |
| 償却金 | - |
| 更新料 | - |
| 保証料等 | 要加入(2年15000円) |
| 保証会社補足 | 賃料総額の30%〜 |
| 取引態様 | 媒介 |
| 情報更新日 | 2025年12月15日 |
| 次回更新予定日 | 2026年1月18日 |
設備・特記
《設備》キッチンに窓/キッチン未使用/室内洗濯機置場/リフォーム済/収納スペース/物置/押入/全居室洋室/バス・トイレ別/追い焚き風呂/温水洗浄便座/シャワー/浴室に窓/浴室未使用/トイレ未使用/エアコン/敷地内駐車場/駐車場(2台)/プロパンガス/平屋/駐車場2台無料
《物件の特徴》ペット相談可/家賃deポイント対象物件
《その他一時金》-
《その他月額費用》-
備考
《その他》禁煙
※現状と異なる場合は、現状を優先させていただきます。取引態様の欄に「媒介」と表示された物件は「仲介物件」です。ご成約の際には仲介手数料を申し受けます。