15.4万円
店舗
種別 店舗
専有面積 54.03㎡
おすすめ
ポイント
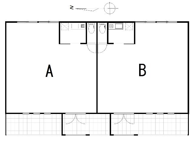
伊勢崎市連取町 新築事務所 商業施設が集合しているエリアです
2026年5月頃完成予定 飲食不可・店舗・事務所・塾・エステ・ネイル・販売 駐車場5台有り・給湯室・エアコン・トイレ
| 築年月 | 2026年5月 |
|---|---|
| 構造 | 木造 |
| 所在階 | 1階建ての1階 |
| 向き | - |
| バルコニー面積 | - |
| 駐車場 | 有り(無料) |
| 入居可能日 | 2026年5月31日予定 |
| 賃貸借の種類 | 普通賃貸借 |
| 契約期間 | 2年 |
| 共益費・管理費 | - |
| 敷金 | 14万円 |
| 礼金 | 308,000円 |
| 保証金 | - |
| 償却金 | - |
| 更新料 | - |
| 保証料等 | 要加入(2年27000円) |
| 保証会社補足 | 初回:月額賃料等総額の100% 継続保証料:1年毎に月額賃料等総額の10% 引落手数料:月々別途 |
| 取引態様 | 代理 |
| 情報更新日 | 2026年2月22日 |
| 次回更新予定日 | 2026年3月20日 |
設備・特記
《設備》敷地内駐車場/プロパンガス/駐車5台以上/エアコン/トイレ
《物件の特徴》新築
《その他一時金》-
《その他月額費用》-
備考
《その他》駐車場5台込 新築のため鍵交換なし 更新料1ヵ月 更新事務手数料22000円税込 業種により別途火災保険加入のお願いあり 【ガス会社:当社指定】
※現状と異なる場合は、現状を優先させていただきます。取引態様の欄に「媒介」と表示された物件は「仲介物件」です。ご成約の際には仲介手数料を申し受けます。