15.4万円
倉庫
種別 倉庫・収納庫
専有面積 165.28㎡
おすすめ
ポイント
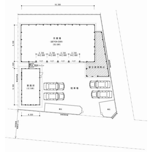
敷地約634.61㎡(約191坪) 倉庫(事務所付)物件
※敷地約634.61㎡(約191坪) 倉庫(事務所付)物件のご紹介 ※敷地内には、倉庫(土間)約165.28㎡(約50坪)と事務所平屋建て約41.4㎡(約12.5坪)があります。
| 築年月 | 1984年1月 |
|---|---|
| 構造 | 重量鉄骨造 |
| 所在階 | 1階建ての1階 |
| 向き | - |
| バルコニー面積 | - |
| 駐車場 | 有り(無料) |
| 入居可能日 | 即可 |
| 賃貸借の種類 | 普通賃貸借 |
| 契約期間 | 3年 |
| 共益費・管理費 | - |
| 敷金 | 28万円 |
| 礼金 | 154,000円 |
| 保証金 | - |
| 償却金 | - |
| 更新料 | 更新後賃料:1ヶ月 |
| 保証料等 | 要加入(3年) |
| 保証会社補足 | 初回保証料総賃料の100%、1年毎更新保証料総賃料の10% |
| 取引態様 | 媒介 |
| 情報更新日 | 2025年11月17日 |
| 次回更新予定日 | 2025年11月26日 |
設備・特記
《設備》敷地内駐車場/閑静な住宅街
《その他一時金》-
《その他月額費用》-
備考
《更新事務手数料》:38,500円
《その他》※建物(倉庫・事務所)は、未登記となります※水道料定額 3000/月 ※賃貸保証会社(ジェイリース)加入要 初回保証料総賃料の100%、更新1年毎に総賃料の10%が掛かります ※店舗総合保険加入要 ※市街化調整区域 ※現況引渡し ※業種、引き渡し時期ご相談ください。
※現状と異なる場合は、現状を優先させていただきます。取引態様の欄に「媒介」と表示された物件は「仲介物件」です。ご成約の際には仲介手数料を申し受けます。