16.4万円

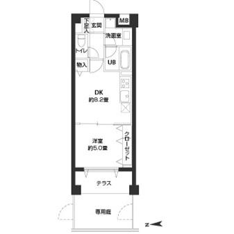
1DK

種別 マンション

専有面積 34.65㎡

カスタリア自由が丘(0106)

おすすめポイント

おすすめ
ポイント

東急東横線・大井町線「自由が丘」駅で2路線利用可能。全住戸ペット飼育相談可(小型犬1匹or猫1匹 ※その他諸条件有)。エアコン、浴室乾燥機、シャワートイレ。宅配ボックス設置。駐輪場(無料)も利用可能。オー

写真:物件の写真
写真:その他物件の写真01
写真:その他物件の写真02
NoImage

物件概要

築年月 2004年4月
構造 鉄筋コンクリート造
所在階 5階建ての1階
向き -
バルコニー面積 -
駐車場 なし
入居可能日 2025年12月31日予定
賃貸借の種類 普通賃貸借
契約期間 2年
共益費・管理費 10,000円
敷金 16.4万円
礼金 164,000円
保証金 -
償却金 -
更新料 164,000円
保証料等 要加入
保証会社補足 -
取引態様 媒介
情報更新日 2025年11月9日
次回更新予定日 2025年11月16日

※現状と異なる場合は、現状を優先させていただきます。取引態様の欄に「媒介」と表示された物件は「仲介物件」です。ご成約の際には仲介手数料を申し受けます。

ピタットハウス新宿西口店TEL:03-5909-5601