14万円
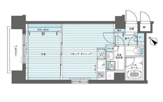
1LDK
種別 マンション
専有面積 37.84㎡
おすすめ
ポイント
複数路線利用可の新横浜駅徒歩圏内で通勤等便利です☆彡
宅配ボックス完備で外出中でも荷物の受け取りが可能です♪ TVモニター付きオートロックで防犯面安心です☆彡 追い焚き機能付きお風呂なので短時間で適温にできます★
| 築年月 | 2008年11月 |
|---|---|
| 構造 | 鉄筋コンクリート造 |
| 所在階 | 11階建ての11階 |
| 向き | 北西 |
| バルコニー面積 | - |
| 駐車場 | なし |
| 入居可能日 | 相談 |
| 賃貸借の種類 | 定期賃貸借 |
| 契約期間 | 2年 |
| 共益費・管理費 | 5,000円 |
| 敷金 | 14万円 |
| 礼金 | 140,000円 |
| 保証金 | - |
| 償却金 | - |
| 更新料 | - |
| 保証料等 | 要加入 |
| 保証会社補足 | 初回:賃料等×50%・月額:賃料等×1% |
| 取引態様 | 媒介 |
| 情報更新日 | 2025年10月27日 |
| 次回更新予定日 | 2025年11月3日 |
設備・特記
《設備》バルコニー/室内洗濯機置場/下駄箱/クローゼット/収納スペース/上階無し/2面採光/バス・トイレ別/浴室乾燥機/追い焚き風呂/独立洗面台/温水洗浄便座/シャワー/洗面化粧台/洗面所/トイレ/洗面台/脱衣所/洗面所にドア/オートロック/モニタ付オートロック/インターネット対応/CATV/光回線/最上階/角部屋/分譲マンションタイプ/外壁タイル張り/エレベータ/宅配ボックス/駐輪場/都市ガス/ガスコンロ(2口)
《物件の特徴》二人入居可
《その他一時金》鍵交換費用:27500円
《その他月額費用》家財保険+付帯サービス:1835円/月
備考
《駐輪場》有り 500円/月
《その他》◆契約時:当月分+翌月分の賃料・管理費をお支払い頂きます。 ◆駐輪場:契約時2年間一括払い※台数要確認 ◆一部法人保証会社未加入時:敷金・礼金を各1ヶ月追加 ◆解約時:ルームクリーニング費用及び借主負担分の原状回復費用をお支払い頂きます。
※現状と異なる場合は、現状を優先させていただきます。取引態様の欄に「媒介」と表示された物件は「仲介物件」です。ご成約の際には仲介手数料を申し受けます。