180万円

2LDK

種別 マンション

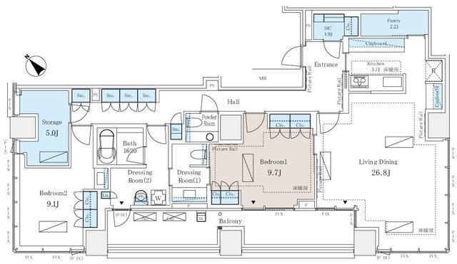
専有面積 134.18㎡

パークコート虎ノ門(2102)

おすすめポイント

おすすめ
ポイント

写真:物件の写真
写真:その他物件の写真01
写真:その他物件の写真02
写真:その他物件の写真03

物件概要

築年月 2022年1月
構造 鉄筋コンクリート造
所在階 21階建ての21階
向き 南西
バルコニー面積 19.00㎡
駐車場 なし
入居可能日 相談
賃貸借の種類 定期賃貸借
契約期間 3年
共益費・管理費 50,000円
敷金 180万円
礼金 1,800,000円
保証金 -
償却金 -
更新料 -
保証料等 要加入
保証会社補足 初回保証委託料(最低15,000円):月額賃料等の50%、 2年目以降:10,000円/年
取引態様 媒介
情報更新日 2025年10月15日
次回更新予定日 2025年10月25日

※現状と異なる場合は、現状を優先させていただきます。取引態様の欄に「媒介」と表示された物件は「仲介物件」です。ご成約の際には仲介手数料を申し受けます。

ピタットハウス亀戸店TEL:03-5628-9922