10.5万円
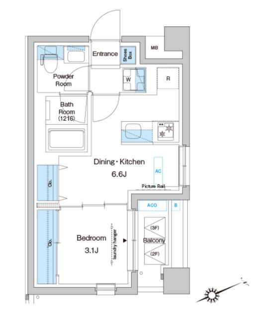
1DK
種別 マンション
専有面積 27.20㎡
おすすめ
ポイント
ペット飼育可能!(小型犬2匹/中型犬1匹/猫2匹)
独立した角部屋で両隣の音が気にならないお部屋です。 妙蓮寺駅まで徒歩6分!坂もなく通勤・通学に便利な立地! 1階に共用のワーキングスペース完備・在宅ワークに最適です。
| 築年月 | 2024年2月 |
|---|---|
| 構造 | 鉄筋コンクリート造 |
| 所在階 | 5階建ての3階 |
| 向き | 北東 |
| バルコニー面積 | - |
| 駐車場 | 空きなし |
| 入居可能日 | 2026年3月10日予定 |
| 賃貸借の種類 | 普通賃貸借 |
| 契約期間 | 2年 |
| 共益費・管理費 | 10,000円 |
| 敷金 | 10.5万円 + ペット積み増し(10.5万円) |
| 礼金 | 105,000円 |
| 保証金 | - |
| 償却金 | - |
| 更新料 | 更新後賃料:1ヶ月 |
| 保証料等 | 要加入(2年16000円) |
| 保証会社補足 | オリコ【初回】総支払額の50%【月額】1000円 |
| 取引態様 | 媒介 |
| 情報更新日 | 2026年1月26日 |
| 次回更新予定日 | 2026年2月2日 |
設備・特記
《設備》オートロック/TVモニター付きインターホン/モニタ付オートロック/インターネット対応/インターネット無料/CATV/BSアンテナ/CSアンテナ/角部屋/エレベータ/宅配ボックス/敷地内駐車場/駐輪場/ガレージ/都市ガス/敷地内ごみ置き場/常時ゴミ出し可能/システムキッチン/カウンターキッチン/ガスコンロ(2口)/フローリング/バルコニー/室内洗濯機置場/下駄箱/クローゼット/収納スペース/室内物干し/バス・トイレ別/浴室乾燥機/洗髪洗面化粧台/独立洗面台/温水洗浄便座/シャワー/洗面化粧台/エアコン
《物件の特徴》ペット相談可/オンライン内見可/オンライン相談可/IT重説対応物件/二人入居可/二人入居相談
《その他一時金》-
《その他月額費用》-
備考
《駐輪場》有り 110円/月
《その他》※退去時の室内クリーニング費用負担があります。
※現状と異なる場合は、現状を優先させていただきます。取引態様の欄に「媒介」と表示された物件は「仲介物件」です。ご成約の際には仲介手数料を申し受けます。