66万円
事務所
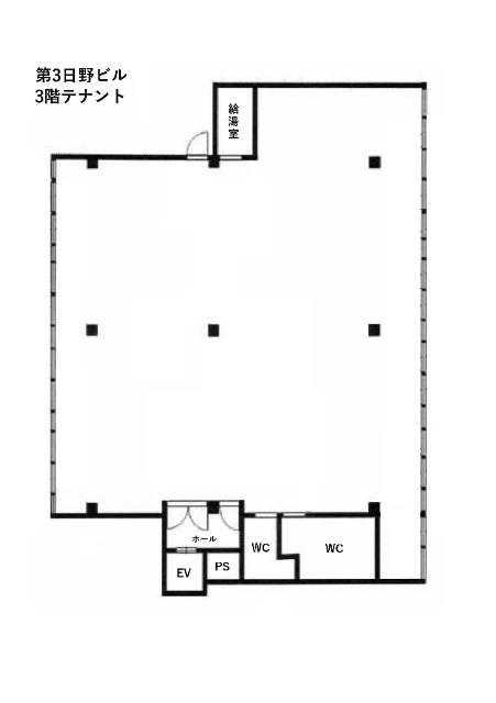
種別 事務所
専有面積 348.60㎡
おすすめ
ポイント
【事務所募集中】京急鶴見駅徒歩6分の好立地です!
京急鶴見駅徒歩6分の好立地! 事務所利用に付き各種ご相談可能 図面と状況が異なる場合、現況を優先いたします。
| 築年月 | 1981年3月 |
|---|---|
| 構造 | 鉄筋コンクリート造 |
| 所在階 | 3階建ての3階 |
| 向き | - |
| バルコニー面積 | - |
| 駐車場 | なし |
| 入居可能日 | 相談 |
| 賃貸借の種類 | 普通賃貸借 |
| 契約期間 | 3年 |
| 共益費・管理費 | - |
| 敷金 | - |
| 礼金 | 660,000円 |
| 保証金 | 3,960,000円 |
| 償却金 | - |
| 更新料 | 更新前賃料:1ヶ月 |
| 保証料等 | 要加入 |
| 保証会社補足 | 日本セーフティ株式会社 |
| 取引態様 | 媒介 |
| 情報更新日 | 2026年5月11日 |
| 次回更新予定日 | 2026年5月18日 |
設備・特記
《設備》エレベータ
《その他一時金》-
《その他月額費用》-
備考
《その他》★業種については以下ご確認の上、詳細なお問合せはピタットハウス川崎駅前店の堀内宛にご連絡ください! ?044-221-0402 (事務所) ?070-8821-5424 (堀内宛) ※業種についてご確認ください※ ※キャバクラ・風俗店の利用不可 ※24時間出入り可能なフィットネスジムなど不可 ※飲食不可
※現状と異なる場合は、現状を優先させていただきます。取引態様の欄に「媒介」と表示された物件は「仲介物件」です。ご成約の際には仲介手数料を申し受けます。