117.8万円
事務所
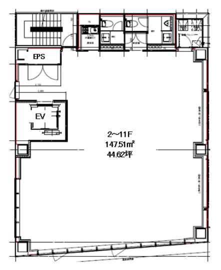
種別 事務所
専有面積 147.51㎡
おすすめ
ポイント
10月竣工!新築オフィスビル
靖国通りに立地している新築オフィスビル! 立会いにて内覧可能!
| 築年月 | 2025年10月 |
|---|---|
| 構造 | 重量鉄骨造 |
| 所在階 | 12階建ての9階 |
| 向き | - |
| バルコニー面積 | - |
| 駐車場 | なし |
| 入居可能日 | 即可 |
| 賃貸借の種類 | 定期賃貸借 |
| 契約期間 | 3年 |
| 共益費・管理費 | 147,246円 |
| 敷金 | - |
| 礼金 | - |
| 保証金 | 10,708,800円 |
| 償却金 | 107.0万円(解約時)明渡後に償却 |
| 更新料 | 更新後賃料:1ヶ月 |
| 保証料等 | 要加入 |
| 保証会社補足 | 初回保証料:月額固定費及ぶ消費税の100% 更新料1年ごとに10,000円 |
| 取引態様 | 媒介 |
| 情報更新日 | 2025年11月13日 |
| 次回更新予定日 | 2025年11月20日 |
設備・特記
《設備》エレベータ/カードキー/エアコン/エアコン2台以上
《物件の特徴》新築/事務所使用可/礼金不要
《その他一時金》-
《その他月額費用》-
備考
《その他》SDGsの取り組みの一環として、ご入居時には借主様側の内装に合わせてお好みのタイルカーペットをご用意をお願いいたします。
※現状と異なる場合は、現状を優先させていただきます。取引態様の欄に「媒介」と表示された物件は「仲介物件」です。ご成約の際には仲介手数料を申し受けます。