13.5万円

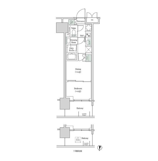
2K

種別 マンション

専有面積 26.76㎡

ブルックサイドレジデンス木場(434)

おすすめポイント

おすすめ
ポイント

写真:物件の写真
写真:その他物件の写真01
NoImage
NoImage

物件概要

築年月 2026年3月
構造 鉄筋コンクリート造
所在階 18階建ての4階
向き
バルコニー面積 5.00㎡
駐車場 なし
入居可能日 2026年3月17日予定
賃貸借の種類 普通賃貸借
契約期間 2年
共益費・管理費 20,000円
敷金 13.5万円
礼金 -
保証金 -
償却金 -
更新料 更新後賃料:1ヶ月
保証料等 要加入
保証会社補足 初回保証料(最低二万円):月額賃料等の50%、2年目以降:一万円/年、決済手数料三百円(税込)/月
取引態様 媒介
情報更新日 2026年2月21日
次回更新予定日 2026年2月28日

※現状と異なる場合は、現状を優先させていただきます。取引態様の欄に「媒介」と表示された物件は「仲介物件」です。ご成約の際には仲介手数料を申し受けます。

ピタットハウス亀戸店TEL:03-5628-9922