22.3万円
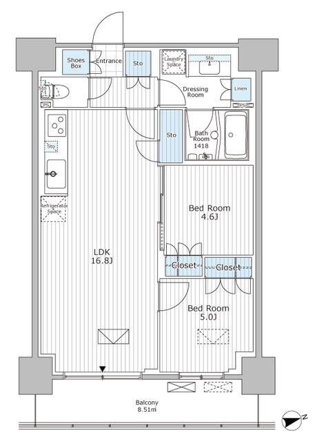
2LDK
種別 マンション
専有面積 60.80㎡
おすすめ
ポイント
総武線「市川」駅徒歩5分!2024年築ペット飼育可マンション
総武・中央線「市川」・京成本線「市川真間」徒歩5分圏内の好立地! 貴重なペット飼育相談可☆(小型犬もしくは猫1匹・敷金1ヶ月分追加) サウンドルームや個室ワークブースなど共用部施設も充実!(一部有料)
| 築年月 | 2024年7月 |
|---|---|
| 構造 | 鉄筋コンクリート造 |
| 所在階 | 13階建ての8階 |
| 向き | 東 |
| バルコニー面積 | 8.00㎡ |
| 駐車場 | なし |
| 入居可能日 | 相談 |
| 賃貸借の種類 | 定期賃貸借 |
| 契約期間 | 2年 |
| 共益費・管理費 | 20,000円 |
| 敷金 | 22.3万円 |
| 礼金 | - |
| 保証金 | - |
| 償却金 | - |
| 更新料 | - |
| 保証料等 | 要加入 |
| 保証会社補足 | 初回保証委託料(最低20,000円):月額賃料等の50%、 2年目以降:9,600円/年 |
| 取引態様 | 媒介 |
| 情報更新日 | 2026年3月4日 |
| 次回更新予定日 | 2026年3月11日 |
設備・特記
《設備》エレベータ/宅配ボックス/システムキッチン/グリル/フローリング/バルコニー/室内洗濯機置場/バス・トイレ別/浴室乾燥機/追い焚き風呂/独立洗面台/エアコン/オートロック/BSアンテナ
《物件の特徴》ペット相談可/コンビニ近く/事務所利用不可
《その他一時金》室内清掃費:113696円 / 鍵交換費:33000円
《その他月額費用》口座振替事務手数料:220円/月
備考
《その他》*定期借家契約* 1年未満解約違約金1ヵ月有/ACクリーニング費用借主負担/電気一括受電他社不可/ペット飼育相談可(敷金+1)/駐輪場区画指定
※現状と異なる場合は、現状を優先させていただきます。取引態様の欄に「媒介」と表示された物件は「仲介物件」です。ご成約の際には仲介手数料を申し受けます。