5.6万円
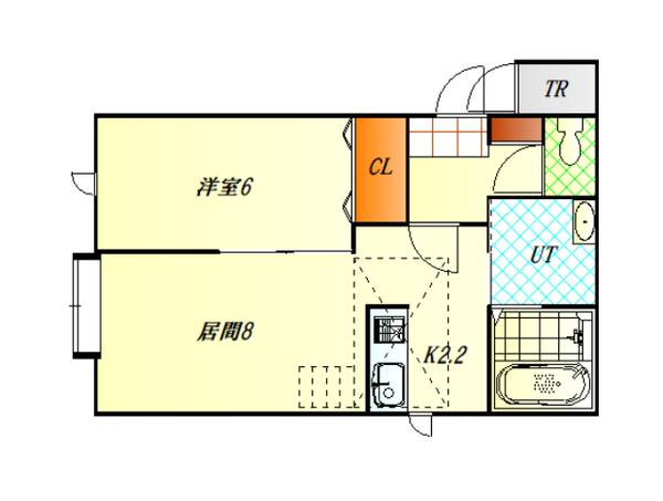
1LDK
種別 アパート
専有面積 43.45㎡
おすすめ
ポイント
エコジョーズで経済的!ネット無料で通信費を軽減できます!
電子キー&TVドアホンで防犯対策が安心。夏場でも快適に過ごせるエアコン完備。ゆったりできる1坪風呂。生活空間が広がるロフト付き。BS対応。追焚・浴室換気乾燥機・シャンプードレッサー・温水洗浄便座付き♪
| 築年月 | 2019年2月 |
|---|---|
| 構造 | 木造 |
| 所在階 | 2階建ての2階 |
| 向き | - |
| バルコニー面積 | - |
| 駐車場 | 有り 月額2,000円 |
| 入居可能日 | 2026年5月31日予定 |
| 賃貸借の種類 | 普通賃貸借 |
| 契約期間 | 2年 |
| 共益費・管理費 | - |
| 敷金 | - |
| 礼金 | - |
| 保証金 | - |
| 償却金 | - |
| 更新料 | - |
| 保証料等 | 要加入(2年18000円) |
| 保証会社補足 | 初回保証料賃料総額50% 月額支払手数料1.5% 更新(年)10,000円 |
| 取引態様 | 媒介 |
| 情報更新日 | 2026年4月18日 |
| 次回更新予定日 | 2026年4月25日 |
設備・特記
《設備》インターネット対応/インターネット無料/BSアンテナ/敷地内駐車場/都市ガス/ガスコンロ設置可/独立型キッチン/フローリング/ロフト/室内洗濯機置場/下駄箱/クローゼット/収納スペース/照明器具/トランクルーム/全居室収納/全室照明付き/全居室洋室/全居室6畳以上/エコジョーズ/バス・トイレ別/浴室乾燥機/追い焚き風呂/洗髪洗面化粧台/独立洗面台/温水洗浄便座/シャワー/洗面化粧台/洗面所/トイレ/洗面台/浴室1坪以上/脱衣所/エアコン/ガス暖房/温水ルームヒーター/TVモニター付きインターホン/電子キー
《物件の特徴》オンライン内見可/オンライン相談可/IT重説対応物件/敷金不要/礼金不要/敷金・礼金不要/保証人不要/初期費用カード決済可
《その他一時金》水廻り清掃料:27500円 / 安心入居サポート:16500円
《その他月額費用》-
備考
《その他》【契約時】水廻り清掃料:27,500円(税込)【退去時】ストーブ分解清掃料:25,000円(税別)エアコン分解清掃量:15,000円(税別)
※現状と異なる場合は、現状を優先させていただきます。取引態様の欄に「媒介」と表示された物件は「仲介物件」です。ご成約の際には仲介手数料を申し受けます。