25.5万円
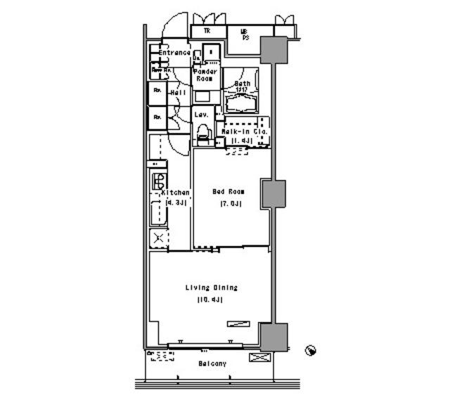
1LDK
種別 マンション
専有面積 53.13㎡
おすすめ
ポイント
| 築年月 | 2008年3月 |
|---|---|
| 構造 | 鉄筋コンクリート造 |
| 所在階 | 20階建ての3階 |
| 向き | 南西 |
| バルコニー面積 | 6.00㎡ |
| 駐車場 | 有り 月額27,500円 |
| 入居可能日 | 2026年3月28日予定 |
| 賃貸借の種類 | 普通賃貸借 |
| 契約期間 | 2年 |
| 共益費・管理費 | 6,000円 |
| 敷金 | 25.5万円 |
| 礼金 | 255,000円 |
| 保証金 | - |
| 償却金 | - |
| 更新料 | 更新後賃料:1ヶ月 |
| 保証料等 | 要加入 |
| 保証会社補足 | 初回保証委託料(最低20,000円):月額賃料等の50%、 2年目以降:9,600円/年 |
| 取引態様 | 媒介 |
| 情報更新日 | 2026年3月3日 |
| 次回更新予定日 | 2026年3月10日 |
設備・特記
《設備》インターネット対応/CATV/BSアンテナ/CSアンテナ/エレベータ/宅配ボックス/敷地内駐車場/フロントサービス/耐震構造/敷地内ごみ置き場/常時ゴミ出し可能/バイク置場/コインランドリー/システムキッチン/IHコンロ/グリル/フローリング/バルコニー/室内洗濯機置場/バス・トイレ別/浴室乾燥機/独立洗面台/エアコン/オートロック/モニタ付オートロック
《物件の特徴》ペット相談可/ピアノ相談可/事務所利用不可
《その他一時金》室内清掃費:99353円 / 鍵交換費:16500円
《その他月額費用》口座振替事務手数料:220円/月
備考
※現状と異なる場合は、現状を優先させていただきます。取引態様の欄に「媒介」と表示された物件は「仲介物件」です。ご成約の際には仲介手数料を申し受けます。