9.7万円
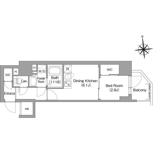
1DK
種別 マンション
専有面積 29.94㎡
おすすめ
ポイント
新築 2025年3月1日入居開始 顔認証セキュリティ導入
オートロックでセキュリティ安心マンション インターネット無料で利用できます
| 築年月 | 2025年1月 |
|---|---|
| 構造 | 鉄筋コンクリート造 |
| 所在階 | 15階建ての8階 |
| 向き | 東 |
| バルコニー面積 | - |
| 駐車場 | なし |
| 入居可能日 | 2025年12月31日予定 |
| 賃貸借の種類 | 普通賃貸借 |
| 契約期間 | 2年 |
| 共益費・管理費 | 12,000円 |
| 敷金 | - |
| 礼金 | - |
| 保証金 | - |
| 償却金 | - |
| 更新料 | 30,000円 |
| 保証料等 | 要加入(2年16550円) |
| 保証会社補足 | エポスカード(RP) 保証料:賃料等の50%(最低2万)、月額保証料:賃料等の1%(更新料無) |
| 取引態様 | 媒介 |
| 情報更新日 | 2025年11月6日 |
| 次回更新予定日 | 2025年11月12日 |
設備・特記
《設備》エアコン/オートロック/TVモニター付きインターホン/防犯カメラ/インターネット無料/エレベータ/宅配ボックス/駐輪場/常時ゴミ出し可能/バイク置場/室内洗濯機置場/ウォークインクロゼット/バス・トイレ別/浴室乾燥機/洗髪洗面化粧台/独立洗面台/温水洗浄便座
《その他一時金》鍵交換代:22000円 / 駐輪場ステッカー:440円 / 清掃費:27500円 / エアコン清掃費:8250円
《その他月額費用》-
備考
《その他》保証会社利用必須(一部法人で保証会社利用無しの場合敷金1ヶ月積増) 更新料30,000円 家具家電プラン対応可 契約時デジタルキー発行費22,000円 平面駐車場33,000円 バイク3,300円・ミニバイク1,650円 駐輪場(ラック式)330円、ステッカー代440円
※現状と異なる場合は、現状を優先させていただきます。取引態様の欄に「媒介」と表示された物件は「仲介物件」です。ご成約の際には仲介手数料を申し受けます。