15万円
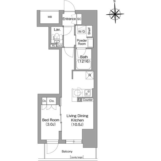
1LDK
種別 マンション
専有面積 35.74㎡
おすすめ
ポイント
新築 ネットWi-Fi無料 24時間ゴミ出し可・追焚機能
礼金1ヶ月※法人契約の場合礼金2ヶ月 大阪メトロ堺筋線「堺筋本町」駅徒歩5分
| 築年月 | 2026年1月 |
|---|---|
| 構造 | 鉄筋コンクリート造 |
| 所在階 | 15階建ての5階 |
| 向き | 南 |
| バルコニー面積 | - |
| 駐車場 | なし |
| 入居可能日 | 即可 |
| 賃貸借の種類 | 普通賃貸借 |
| 契約期間 | 2年 |
| 共益費・管理費 | 12,000円 |
| 敷金 | (0ヶ月) |
| 礼金 | 150,000円 |
| 保証金 | - |
| 償却金 | - |
| 更新料 | 30,000円 |
| 保証料等 | 要加入(2年16550円) |
| 保証会社補足 | 保証料:賃料等の50%(最低2万)、月額保証料:賃料等の1%(更新料無) |
| 取引態様 | 媒介 |
| 情報更新日 | 2026年4月16日 |
| 次回更新予定日 | 2026年4月23日 |
設備・特記
《設備》オートロック/TVモニター付きインターホン/防犯カメラ/電子キー/浴室乾燥機/追い焚き風呂/温水洗浄便座/室内洗濯機置場/下駄箱/南向き/防音サッシ/エレベータ/宅配ボックス/自走式駐車場/常時ゴミ出し可能
《物件の特徴》新築/ペット不可/二人入居相談
《その他一時金》駐輪場ステッカー:440円 / 鍵交換代:22000円 / 清掃費:38500円 / エアコン清掃費:13200円
《その他月額費用》-
備考
《その他》■保証会社利用必須(一部法人で保証会社利用無しの場合敷金1ヶ月積増)■更新料30,000円■法人契約の場合は礼金2ヶ月■家具家電プラン対応可■契約時デジタルキー発行費22,000円■駐車場33,000円■駐輪場:下段330円上段165円、ステッカー440円■ペット(小型犬OR猫1匹)2、3階※敷金1ヶ月・共益費3,000円積増■外国籍の方はGTN利用可(初回保証料100%/月次2%)
※現状と異なる場合は、現状を優先させていただきます。取引態様の欄に「媒介」と表示された物件は「仲介物件」です。ご成約の際には仲介手数料を申し受けます。