88万円
店舗
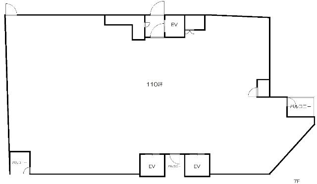
種別 店舗
専有面積 363.63㎡
おすすめ
ポイント
大通りに面したビルの中のワンフロア取りきりの物件!
飲食店等におススメです!電車通りからすぐの店舗です!別階も空き区画ご紹介できます。
| 築年月 | 1978年11月 |
|---|---|
| 構造 | 重量鉄骨造 |
| 所在階 | 9階建ての7階 |
| 向き | - |
| バルコニー面積 | - |
| 駐車場 | なし |
| 入居可能日 | 相談 |
| 賃貸借の種類 | 普通賃貸借 |
| 契約期間 | 2年 |
| 共益費・管理費 | - |
| 敷金 | 480万円 |
| 礼金 | - |
| 保証金 | - |
| 償却金 | - |
| 更新料 | - |
| 保証料等 | 要加入 |
| 保証会社補足 | 別途費用あり |
| 取引態様 | 媒介 |
| 情報更新日 | 2025年11月5日 |
| 次回更新予定日 | 2025年11月23日 |
設備・特記
《その他一時金》-
《その他月額費用》-
備考
《その他》敷金は、業種により4〜6ヶ月となります。 共益費は実費。 契約期間は要相談。 保証会社は、要相談。 ワンフロア取りきり。 解約予告6ヶ月前。
※現状と異なる場合は、現状を優先させていただきます。取引態様の欄に「媒介」と表示された物件は「仲介物件」です。ご成約の際には仲介手数料を申し受けます。