66万円
事務所
種別 事務所
専有面積 617.50㎡
おすすめ
ポイント
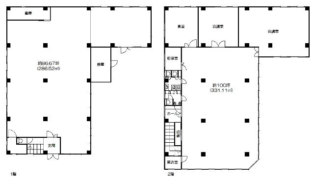
南御座の主要道路近くの事務所に適した物件です!
お家賃見直しました!広々とした倉庫や2階には会議室として使用できるお部屋もあり、食堂として使用されていたお部屋にはキッチンも完備!32台分込みの敷地外駐車場もおすすめです!
| 築年月 | 1979年11月 |
|---|---|
| 構造 | 重量鉄骨造 |
| 所在階 | 2階建ての2階 |
| 向き | - |
| バルコニー面積 | - |
| 駐車場 | 有り(無料) |
| 入居可能日 | 相談 |
| 賃貸借の種類 | 普通賃貸借 |
| 契約期間 | 2年 |
| 共益費・管理費 | - |
| 敷金 | 180万円 |
| 礼金 | 600,000円 |
| 保証金 | - |
| 償却金 | - |
| 更新料 | - |
| 保証料等 | 要加入 |
| 保証会社補足 | 別途費用有り |
| 取引態様 | 媒介 |
| 情報更新日 | 2025年11月8日 |
| 次回更新予定日 | 2025年11月23日 |
設備・特記
《設備》敷地内駐車場/来客用駐車場/駐車4台可
《物件の特徴》事務所使用相談可/事務所使用可
《その他一時金》-
《その他月額費用》-
備考
《その他》水洗トイレも男女別にあります! 契約期間・敷金は業種により要相談。共益費は実費です。 契約時、保証会社利用必須になります。 敷地外駐車場も賃料に含みます。
※現状と異なる場合は、現状を優先させていただきます。取引態様の欄に「媒介」と表示された物件は「仲介物件」です。ご成約の際には仲介手数料を申し受けます。