20万円
3LDK
種別 一戸建
専有面積 119.71㎡
おすすめ
ポイント
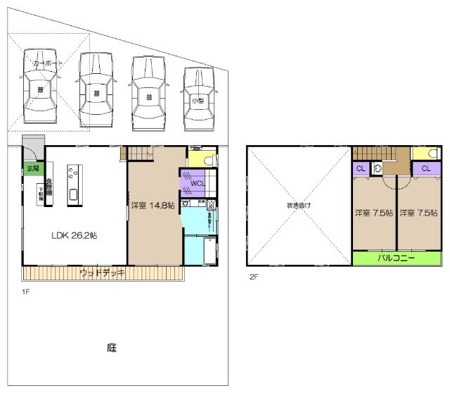
2025年5月築、築浅一戸建て。設備充実!初月小学校区。
吹抜けが特徴的なリビングダイニング、ゆったり26帖もあります。広々したお庭もあり開放的!駐車場は並列4台可(うち1台小型車、1台カーポート付き)。共益費・町費・浄化槽点検清掃費は実費。全室エアコン付・
| 築年月 | 2025年5月 |
|---|---|
| 構造 | 木造 |
| 所在階 | 2階建ての1階~2階 |
| 向き | 南西 |
| バルコニー面積 | - |
| 駐車場 | 有り(無料) |
| 入居可能日 | 相談 |
| 賃貸借の種類 | 普通賃貸借 |
| 契約期間 | 1年 |
| 共益費・管理費 | - |
| 敷金 | 40万円 |
| 礼金 | 200,000円 |
| 保証金 | - |
| 償却金 | - |
| 更新料 | - |
| 保証料等 | 要加入 |
| 保証会社補足 | 別途費用有り |
| 取引態様 | 媒介 |
| 情報更新日 | 2026年4月18日 |
| 次回更新予定日 | 2026年5月2日 |
設備・特記
《設備》システムキッチン/カウンターキッチン/ガスコンロ(3口)/食器洗浄乾燥機/グリル/バルコニー/室内洗濯機置場/下駄箱/照明器具/ウォークインクローゼット/間接照明/全居室フローリング/吹抜/庭/10㎡以上の庭/陽当り良好/全室照明付き/全居室洋室/全室南向き/バス・トイレ別/追い焚き風呂/洗髪洗面化粧台/独立洗面台/温水洗浄便座/洗面化粧台/浴室1坪以上/浴室に窓あり/エアコン/全居室エアコン/エアコン2台以上/TVモニター付きインターホン/専用庭/敷地内駐車場/都市ガス/駐車4台可/駐車場3台分以上/カーポート/浄化槽
《その他一時金》鍵交換費(契約時):27500円
《その他月額費用》-
備考
《その他》■エアコン5台(全室+キッチン) ■温水洗浄便座(1・2階) ■モニターホン ■洗面化粧台(1・2階) ■システムキッチン(3口コンロ・グリル・食洗機) ■食器棚 ■追い焚き ■下駄箱 ■照明 ■室内物干し ■ポスト ■ロールカーテン ■庭 ※退去時の室内クリーニング費用は借主負担になります。 ※ブラインドは現状貸し
※現状と異なる場合は、現状を優先させていただきます。取引態様の欄に「媒介」と表示された物件は「仲介物件」です。ご成約の際には仲介手数料を申し受けます。