20.7万円
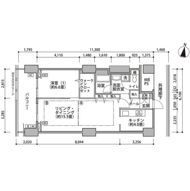
1LDK
種別 マンション
専有面積 66.06㎡
おすすめ
ポイント
3路線3駅利用可能なデザイナーズ賃貸住宅!
| 築年月 | 2004年3月 |
|---|---|
| 構造 | 鉄筋コンクリート造 |
| 所在階 | 地下1階・地上14階建ての3階 |
| 向き | 西 |
| バルコニー面積 | - |
| 駐車場 | なし |
| 入居可能日 | 2025年12月31日予定 |
| 賃貸借の種類 | 普通賃貸借 |
| 契約期間 | 2年 |
| 共益費・管理費 | 15,000円 |
| 敷金 | 20.7万円 |
| 礼金 | 310,500円 |
| 保証金 | - |
| 償却金 | - |
| 更新料 | 更新後賃料:1ヶ月 |
| 保証料等 | 要加入(2年16550円) |
| 保証会社補足 | レジデンシャルパートナーズ 保証料:賃料等の50%(最低2万)、月額保証・事務手数料:賃料等の1%(更新料無) |
| 取引態様 | 媒介 |
| 情報更新日 | 2025年11月13日 |
| 次回更新予定日 | 2025年11月19日 |
設備・特記
《設備》エレベータ/宅配ボックス/駐輪場/都市ガス/バイク置場/CATV/その他インターネット/オートロック/TVモニター付きインターホン/エアコン/床暖房/バス・トイレ別/追い焚き風呂/独立洗面台/温水洗浄便座/室内洗濯機置場/ウォークインクロゼット/システムキッチン
《その他一時金》鍵交換代:33000円 / 清掃費:92180円 / エアコン清掃費:55000円
《その他月額費用》-
備考
《その他》指定保証会社利用必須※一部法人契約除く・敷金積増(法人契約等保証会社利用不可の場合:敷金2か月)解約時室内及びエアコンクリーニング費用借主負担、ペット飼育・楽器演奏不可、事務所・SOHO利用不可、付随設備に関する費用・空き状況等は要確認。建物の構造上、ご希望のネット回線が使用できない可能性があります。
※現状と異なる場合は、現状を優先させていただきます。取引態様の欄に「媒介」と表示された物件は「仲介物件」です。ご成約の際には仲介手数料を申し受けます。