14.7万円
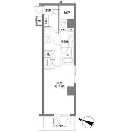
1K
種別 マンション
専有面積 36.96㎡
おすすめ
ポイント
山手線「大塚駅」・丸ノ内線「新大塚駅」で2路線利用可能。全住戸ペット飼育可(小型犬1匹のみ)。エアコン、浴室乾燥機、シャワートイレ。宅配ボックス設置。駐輪場(無料)も利用可能。ダブルオートロック、防犯カ
| 築年月 | 2004年9月 |
|---|---|
| 構造 | 鉄骨鉄筋コンクリート造 |
| 所在階 | 13階建ての4階 |
| 向き | - |
| バルコニー面積 | - |
| 駐車場 | なし |
| 入居可能日 | 2026年6月30日予定 |
| 賃貸借の種類 | 普通賃貸借 |
| 契約期間 | 2年 |
| 共益費・管理費 | 8,000円 |
| 敷金 | 14.7万円 |
| 礼金 | 147,000円 |
| 保証金 | - |
| 償却金 | - |
| 更新料 | 147,000円 |
| 保証料等 | 要加入 |
| 保証会社補足 | - |
| 取引態様 | 媒介 |
| 情報更新日 | 2026年4月17日 |
| 次回更新予定日 | 2026年4月24日 |
設備・特記
《設備》フローリング/バルコニー/室内洗濯機置場/下駄箱/クローゼット/バス・トイレ別/浴室乾燥機/追い焚き風呂/温水洗浄便座/洗面台/エアコン/オートロック/TVモニター付きインターホン/火災警報器(報知機)/インターネット対応/CATV/BSアンテナ/CSアンテナ/エレベータ/宅配ボックス/駐輪場/都市ガス/公営水道/システムキッチン
《物件の特徴》ペット相談可
《その他一時金》-
《その他月額費用》-
備考
《その他》鍵交換費用:22,000円、原則1年未満で解約された場合、違約金(フリーレント等含む)が発生します。保証会社加入が条件で敷金1ケ月、保証会社に加入しない場合は敷金2ケ月。
※現状と異なる場合は、現状を優先させていただきます。取引態様の欄に「媒介」と表示された物件は「仲介物件」です。ご成約の際には仲介手数料を申し受けます。